Самодельный станок для гибки профильной трубы
Станки и инструменты /16-апр,2019,11;51 /
7171

Один из популярных видов оборудования по металлообработке – это станки для гибки профильных труб. Большой спрос на такие устройства можно объяснить широким применением указанных трубных изделий для многих сфер, и в частности в решении бытовых задач. Отрезать профильную трубу весьма просто – достаточно воспользоваться ручным инструментом. Но если ее нужно изогнуть, тогда не обойтись без специального станка для гибки труб.
Получить такое оборудование можно двумя путями, а именно: приобрести заводской станок, что обойдется очень недешево, или же собрать устройство для гибки профильных труб своими руками. Сейчас можно легко найти различные конструктивные схемы, которыми пользуются для изготовления самодельных станков для гибки профильных труб. Здесь мы подробно рассмотрим наиболее простые и самые распространенные среди домашних мастеров модели.
Трубогиб для профильных труб

Общий вид

На этом снимке можно увидеть первое пробное применение оборудования и результаты этой работы. 15-мм профтруба пошла на “руль” для трубогиба.
Кроме того, я внедрил газовый упор – в итоге крайние ролики сами возвращаются к исходному положению.

Чтобы лучше рассмотреть принцип работы и конструктивные особенности, быстренько сделал трехмерную модель.
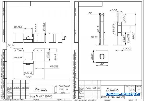
Здесь доступен набор чертежей, если кто-нибудь захочет сделать то же самое.
Трубогиб – другая версия


Сначала мне захотелось соорудить навес в виде капли под автомобиль. Решение покупки-заказа отбросил в сторону – все только своими силами. После изучения множества видео в интернете, была определена конкретная цель, и благополучно воплощена в шестиметровой теплице. На это ушла всего неделя времени. Дальше захотелось сделать по крайней мере мангал, качели, а дальше – еще другие красивые и полезные вещи.

В качестве материала производства трубогиба применен пруток на 25, подшипники – 6 штук, кусок швеллера. Денег на все ушло немного – приблизительно 500 рублей, но прогонка профиля идет с легкостью, без буксования. Профиль можно использовать с минимальным размером 10, максимальным – 40, но, наверное, пойдет и 50, просто такой профиль не попался еще под руку.

Универсальная версия трубогиба
Чтобы изготовить универсальный трубогиб своими руками, нужны только одни стальные детали. Для этого не нужны никакие механические приспособления.


Такой вариант устройства позволяет изгибать трубу локально. Профиль деформируется в результате прямого ручного усилия, из-за этого в конструкции трубогиба должен иметься длинный и прочный рычаг.


Дальше мы рассмотрим, как делается двух-роликовый трубогиб, который крепится на опорную станину. Инструмент по своим размерам может отличаться от предложенной версии, учитывая потребности и материалы.
Подведение итогов
Сделанные в домашних условиях инструменты для изгибания металлических профилей не ограничиваются в этих предложенных моделях. Трубогиб можно самостоятельно собрать, взяв для этого самые разнообразные детали, которые имеются в хозяйстве. Ключевым моментом является сборка прижимного механизма, за счет которого затем между двух стоек продавливается труба, или же роликовой системы, которая позволит деформировать весь профиль целиком.