Трубогиб профильной трубы своими руками
Станки и инструменты /10-июл,2013,12;36 /
166814

В этой статье вы узнаете:
1. Как сделать простейший трубогиб
2. Принцип действия трубогибного станка для профильной трубы.
3. Как сделать станок для изгибания профильной трубы своими руками.
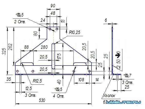
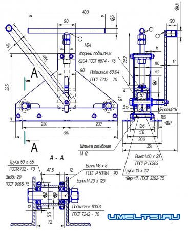
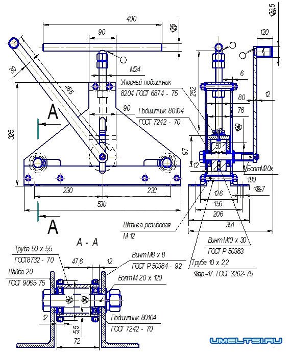
4. Чертежи, размеры самодельного трубогиба
Если вы располагаете свободным временем, а еще у вас есть некоторое количество необходимых деталей, желание и навыки, то вы без труда сможете сделать станок для изгибания профильных труб самостоятельно. Изготовленные на заводе трубогибы, отличаются довольно высокой стоимостью. В том случае, когда потребность в них возникает редко, то окупить себя они смогут совсем не скоро. Тогда на выручку приходит самоделка.
Можно начать с простой и незатейливой конструкции. В качестве платформы для трубогиба из профильной трубы можно взять плиту из железобетона. На ней необходимо разметить дугу для будущего изгиба. Потом по ней просверлить отверстия, с промежутком 4-5 см, и вставить в них штифты, выполненные из арматуры, Ø 20-25 мм.
Закрепив один конец профильной трубы, нужно изогнуть ее по заготовленному шаблону. А чтобы уменьшить внутреннее усилие и небольшое разгибание, концы изгиба нужно ненадолго соединить фиксатором.

Этим способом вы сможете без особых затрат и усилий изгибать трубы до 20 мм.
Чтобы работать с большими трубами, необходимо применить более надежные варианты конструкции трубогибов для профильных труб.
Изначально, нужно взять лебедку и выточить самостоятельно или найти два ролика, радиус которых соответствует диаметру трубы, которую необходимо изогнуть.
Затем, нужно при помощи сварки изготовить стойку Т-образной формы. Для этой цели можно использовать швеллер или металлический прут.
Лебедку и один из роликов необходимо соединить общей цепью и закрепить внизу стойки, другой – выше на вертикальной части.

Сделать работу можно так: одну часть трубы зафиксируйте между роликами, а вторую - уложите на лебедку и, приводя ее в движение, сделайте изгиб.
Другие конструкции трубогибов для профтрубы используют домкрат в П-образной раме из мощного швеллера три ролика (два по краям, на которые и укладывается изгибаемая труба, и третий, изгибающий, непосредственно под домкратом).
Такой трубогибный станок подразумевает наличие двух рабочих – для подачи изгибаемой трубы и для работы домкратом.
Какую конструкцию построить - выбрать Вам, в зависимости от Ваших задач и целей.
Конструкция профильного трубогиба и чертежи
