Деревообрабатывающий станок-«УНИВЕРСАЛ»
Станки и инструменты /25-сен,2009,16;33 /
100627

СТАНОК-«УНИВЕРСАЛ»
Универсальность — главное достоинство разработанного мною многооперационного станка для обработки древесины. Ему «по плечу» токарные работы, фуговка, распиловка материала, сверлильно-фрезерные. шипорезные операции. В конце концов, на нём можно заточить инструмент или превратить его в столярный верстак.
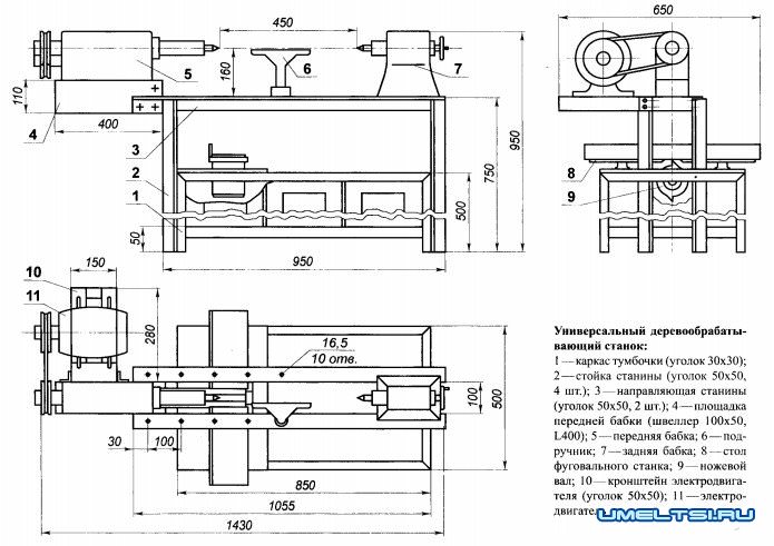
Токарный станок. Он является основой «универсала» и состоит из тумбочки, станины, передней и задней бабок, подручника, площадки под переднюю бабку и кронштейна для крепления эл е ктродв игател я.
Каркас тумбочки сделан из стального уголка 30x30 мм. Станина — из такого же профиля, но с полками 50x50 мм. Всего для неё потребовалось четыре стойки и две направляющие, которые связаны между собой болтами М8.
Площадка под переднюю бабку — это «коробка», сваренная из двух отрезков швеллера 100x50 мм длиной 400 мм и пары стальных пластин 400x100 мм толщиной 2 мм, соединённых винтами Мб. Кронштейн под электродвигатель — из уголков 50x50 мм длиной 280 мм, прикреплённых к площадке передней бабки. Сама же коробка привёрнута к консольным выпускам направляющих станины двумя болтами М12: один из них служит осью поворота коробки с передней бабкой, а второй — фиксатором горизонтального или вертикального её положения.
Электродвигатель (мощность 1 кВт при 2850 об/мин) закреплён на кронштейне и связан со шпинделем клиновидным ремнём.
Такова общая конструктивная схема токарного станка. Теперь о приспособлениях, превращающих его по желанию работающего в целый ряд других деревообрабатывающих станков.
Циркулярная пила. Изготовлена как приставка и состоит из рабочего стопа, дисковой пилы и защитных кожухов. Для работы её стол закрепляют на направляющих станины с помощью четырёх стоек — стальных стержней (шпилек) с резьбой М16. Диск пилы устанавливают на шпиндель передней бабки и зажимают гайкой между шайбами и кольцами. Над диском и под ним устанавливают предохранительные кожухи. В нижнем кожухе, прикрепляемом к станине, есть отверстие и патрубок, через которые отводятся опилки. На столе имеется упорная планка: её можно перемещать по направляющим, регулируя тем самым ширину отрезаемого материала.
Фуговальный станок. Его стоп закреплен на каркасе тумбочки. Ножевой вал со сменными ножами — от электрорубанка. К валу прикреплен шкив диаметром 100 мм. Барабан установлен в левой части тумбочки, одно из отделений которой является стружкосборником. Для приведения ножевого барабана во вращение на шпиндель надевают шкив диаметром 80 мм. Обрабатываемый материал прижимается к столу роликом с пружиной, закрепляемым на направляющих (на рисунке не показаны). Подают материал вручную.
Заточный станок. Для того чтобы преобразовать токарный станок в точило, достаточно на шпиндель передней бабки установить абразивный круг, а на станине закрепить кожух и подручник.
Шипорезный станок. Для такой трансформации переднюю бабку токарного станка, поворачивая вокруг шарнирного болта, переводят из горизонтального положения в вертикальное и фиксируют вторым болтом. На шпинделе закрепляют дисковую пилу или фрезу. На станину устанавливают стоп от циркулярной пилы, высоту его при этом регулируют гайками. Глубину резания устанавливают перемещениями кожуха и упорной планки.
Столярный верстак. Чтобы сделать его из токарного станка, на станине закреппяют двумя боптами верстачную доску (900250x40), в которой проделан ряд квадратных отверстий под клинья. Вторую доску — прижимную устанавпивают справа от первой, в ней — одно квадратное отверстие. Зажимают заготовки между досками с помощью винта. На досках снизу имеются стальные уголки: на верстачной — уголок с приваренными к нему направляющими втулками и гайкой, а на прижимной — с направляющими стержнями и винтом.
В нерабочем положении обе доски верстака крепят к задней стене тумбочки.
Все приспособления к станку хранят в шкафчике правой части тумбочки. Верхняя полка шкафчика предназначена для вспомогательного инструмента.
Таким образом, этот универсальный станок, размещающийся на одном квадратном метре, заменяет целый комплекс станков для обработки дерева.
ГЛЮБЧЕНКО, г К и е в