Приспособление для быстрого горячего копчения на мангале
Полезные приспособления /05-фев,2017,13;44 /
6277

Задумка сделать приспособление для быстрого горячего копчения как вкладыш в дворовый мангал родилась давно... Решение задачи осложнялось отсутствием нержавеющей стали, необходимой для изготовления почти всех деталей изделия.
Повезло в этом году. На заводе, где я работаю, закрыли участок гальванических покрытий и демонтировали короба вентиляции, изготовленные еще в советские времена из 1-мм - 3-мм листов нержавейки, которые я приобрел по цене металлолома.
Из такого отличного материала и были сварены ящик и крышка коптильни.
Решетку и поддон коптильни изготовил из листовой «нержавейки» миллиметровой толщины.
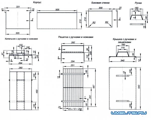
Решетка оригинальна тем, что оснащена ручками и ножками - прямо на ней очень удобно готовые копчености переносить к обеденному столу.
Капельник (поддон), составленный из трех одинаковых лотков, предназначен для сбора жира, стекающего с рыбы в процессе копчения и почти беспрепятственного пропуска горячего дыма. Поддон имеет ручки и ножки.
Ящик сваривается из трех деталей: корпуса и двух торцевых стенок. Корпус, в свою очередь, состоит из дна и приваренных к нему двух (боковых) стенок. Но лучше сделать его как одну деталь (если позволяет лист), согнув боковинки под углом 90° и отбортовок (в противоположную сторону). Затем из такого же листа вырезать две торцевые стенки и тоже выполнить 15-мм отбортовки. Далее приварить торцевые стенки к корпусу. Просветы, образовавшиеся по углам отбортовок ящика, дополнить приваренными квадратными вставками размерами по ширине отбортовок. Две ручки изготавливаются из такого же листа 2-мм нержавеющей стали в виде полос шириной 15 мм и привариваются к боковым стенкам корпуса.
Изготовление крышки коптильни совсем несложно. Ее также надо вырезать из листа «нержавейки» по размерам заготовки. Выполнить 12-мм загибы по длинным сторонам. Затем сделать из полосы нержавеющей стали толщиной 2 мм и шириной 15 мм две ручки и приварить их к крышке симметрично. Напоследок приварите четыре зацепа размерами 20x12x2 мм к загибам крышки по углам.
Для изготовления решетки я купил 12 шампуров и соединил их с помощью боковых и средней перемычкам, приварив последние к боковым и средней перемычкам с шагом 20 мм Из полосы нержавеющей 2-мм стали шириной 15 мм согнул и приварил к решетке ножки и ручки.
Наиболее сложная в изготовлении часть коптильни - это капельник (поддон), собирающий стекающий с рыбы жир. Сначала надо нарезать листы для трех лотков и загнуть у них продольные кромки по 10 мм. Затем приварить торцевые стенки из обрезков шампуров к лоткам. Изготовить из полосы 2-мм нержавеющей стали шириной 15 мм две ножки и приварить к ним два потка. Далее на четырех стойках размерами 20x15 мм над ножками приварить третий, верхний поток. К нему приварить две ручки, согнутые из шампуров.
После тщательной зачистки всех швов провел обжиг изделия небольшим количеством вишневой стружки.
Для копчения продуктов насыпаю равномерно на дно ящика две-три горсти опилок, стружки, небольших щепок деревьев, годных для копчения (я предпочитаю вишню и другие плодовые деревья и кустарники). Эти отходы деревьев тлеют при нагреве днища и выделяют дым.

А. МАТВЕЙЧУК, г. Заводоуковск, Тюменская обл.