Беседка своими руками из горбыля
Строительство /02-мар,2016,23;29 /
11518

Хороший хозяин все в дом тащит. Вот и я, увидел, как мой сосед хотел пихту выбросить, попросил у него и посадил у себя дома на заднем дворе. Спустя пару лет пихта выросла, решил я возле нее своими руками сделать беседку из горбылей (я подумал это будет оригинально ведь мы видим всю природную красоту дерева). Одним из, немаловажным, толчком к моей идеи было то, что у меня были запасы деревянных заготовок и много горбылей которые я и использую для обшивки беседки.
Если кто не понял, что такое горбыль, я то это крайняя часть кругляка после распилки его на доски.
Итак, начнем строительство беседки.
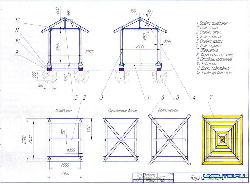
Вначале распилил четыре бревна среднего размера-это будет основой беседки затем размерял и вырыл четыре ямы размером 300×300. Так как почва в моей местности глинистая то в глубь я рыл пока глина не стала плотной.
Дальше, ямы засыпал песком поливая его водой и утрамбовывая. Когда песок сравнился с уровнем почвы на нем выложил четыре кирпичных столба, покрыл рубероидом и досками.
На кирпичных столбах собрал основание и соединил его скобами.
По уровню вертикально поставил четыре стойки поверху, соединив их накрест потолочными балками.
Следующим шагом в строительстве беседки, установил балки и обрешетку для крепления кровельного материала. Уложил шифер.
Перебравши горбыля выбрал более-менее одинаковые и ровные, очистил их от коры, выровнял края (материал получился очень даже замечательный). Его я и прибил к каркасу беседки. Для декорации электролобзиком оконные и дверные проемы сделал овальными. Беседка, сделанная своими руками из горбылей стала какой-то сказочной и одновременно живой.
Из обструганной доски-тридцатки сделал перила и окантовку при входе.
Все у нас получилось хорошо, но пола в беседке еще нет, вот этим и займемся.
Пол в беседке также сделаем из горбылей, предварительно просушенных. Выбрал на территории двора ровную поверхность (недалеко от беседки) и положил пару досок, перпендикулярно прибил сперва два бруска по краям, а затем и все остальные брусья и так до нужной ширины. Затем берем топор и подравниваем толщину что бы в местах основания куда укладываются бревна было 50 мм. У нас получился щит который переворачиваем и опиливаем электролобзиком по необходимому размеру. Перенес щит в беседку (для этого можно использовать телегу и ложем на пол. Таким же образом делаем еще пару щитов и ложем их в беседке. Щит, который находится в центре беседки по ширине должен соответствовать входного проема и длине боковых выступов. Гвоздями крепим щиты.
Последним этапом нашей работы покрываем стены беседки морилкой, а пол вскрываем краской.
Ну вот, любо посмотреть, беседка сделана своими руками из горбыля превзошла все мои ожидания.
Приятно летними вечерами после тяжелого рабочего дня, ведя приятную беседу в кругу семьи или друзей сидеть в беседке и любоваться растущей хвоей.

