Как сделать печь для сауны своими руками
Строительство /30-авг,2011,12;09 /
72212

В наше время мало кого устроит крохотная банька на одного-двух человек. Хочется иметь просторную сауну, да такую, чтобы и русскую парную в ней можно было устроить, и предбанник служил не только раздевалкой, но и местом отдыха. И душ с моечной тоже нужны. Кто-то и на бассейн замахивается.
Габариты бани — не проблема: строй хоромы, сколько средства позволяют. А вот как нагреть большой объем — задача не простая. Есть в продаже печи, но как правило, малой производительности и расчитанные на установку только в сауне. А надо отопить и остальные помещения. Ставить еще одну печь не всегда удобно. Как видите, проблема существует и не все это учитывают при строительстве бани.
По моему мнению, кирпичную печь устанавливать в баню нецелесообразно так как топить ее надо не менее 5-6 часов (представьте, сколько нужно дров). При этом температура в парной (без пара) ограничена 80-90 °С (по правилам эксплуатации печей температура наружной поверхности кирпича не должна превышать 90°С). Такая печь для сауны, где температура может быть существенно выше, уже не подходит.
С другой стороны, чаще всего на садовых участках горят именно сауны, так как хозяева мало уделяют внимания противопожарным правилам. Стены бани плохо защищают от металлических печей, трубы, как правило, выполняют из металла, который со временем прогорает. Поэтому для производительных печей трубы рекомендуется делать только из кирпича.
Предлагается два варианта печи, которые отличаются, в частности, расположением выходного отверстия дымохода. Печи рассчитаны как на сауну, так и на русскую баню. Все зависит от интенсивности топки.
Чертежи для изготовления печи для сауны
В первом варианте (рис. 1) отверстие расположено со стороны, противоположной топочной дверце, во втором (рис. 2) — в верхней части боковой стенки. Это позволяет изменить расположение трубы. Кроме того, во втором варианте возможно установить рядом с печью имеющий с ней общий дымоход камин, обращенный в сторону места отдыха.
В первой конструкции вода нагревается с помощью труб, вваренных в саму печь. Во второй на свободную верхнюю часть печи устанавливается бак из нержавейки. В этом месте, в кладке, разделяющей сауну и моечную, выполняется соответствующее размерам бака отверстие. Бак выступает в моечную на 20-25 см, где заправляется водой и имеет кран.
Обе печи — непрерывного действия. Камни изолированы от дымовых газов и нагреваются за счет передачи тепла металлическими коробами.
Печи (см. рис. 1, 2) имеют достаточно просторную топку с наклоном для лучшего сгорания дров. Поды печей также сделаны с наклоном для улучшения тяги и препятствуют выходу дымовых газов — «дымлению» через открытую топочную дверцу. В первом варианте горячие газы, охватывая с трех сторон короб с камнями, совершают полный оборот и выходят в трубу. Во втором — газы проходят между боковинами печи и наклонными стенками короба (в этом случае короб прогревается более интенсивно), далее наклонным листом отражаются к верхней передней части печи и через стальную трубу направляются в кирпичную трубу. Золу выгребают из ниши, расположенной ниже топочной дверцы, чистка находится выше.
Материал для печей — листовая сталь толщиной 6 мм. В качестве колосников используются стальные арматурные прутки диаметром 22 мм, установленные с зазором 3-5 мм.
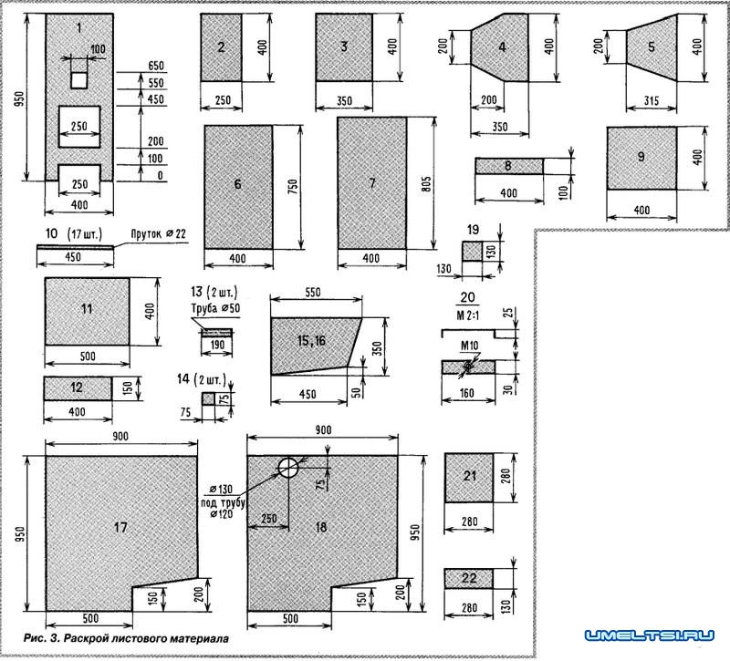
На рис. 3 приведена раскладка листового материала. Номера листов соответствуют позициям, обозначенным на общих видах печей.
Металлическую печь устанавливают непосредственно в сауне. Топка обращена в сторону комнаты отдыха и своей передней поверхностью отапливает это помещение. Боковая стенка корпуса печи прогревает моечную, основное тепло забирает сауна.
Для пожаробезопасности печь обкладывают установленной на едином с нею фундаменте защитной стенкой толщиной в полкирпича (рис. 4). Кладку выполняют из красного кирпича на цементном растворе.
Стенка, отделяющая моечную от сауны, отстоит от боковой поверхности печи на расстояние не более 1 см. Кирпич укладывают в шахматном порядке в зоне боковой стенки печи, а не доходя 5-6 см до ее верха, кладка переходит в сплошную до потолка. Образованные в кладке проемы позволяют печи прогревать моечную излучением. Поверхность кладки со стороны моечной можно обложить керамической плиткой, не перекрывая проемы.
Со стороны комнаты отдыха для предотвращения ожогов печь заглублена в сауну на 10 см и полностью открыта. На уровне верха корпуса печи кладку стенки переводят в сплошную до потолка. При кладке нужно оставлять между кирпичом и печью тепловые зазоры: боковые — 5 мм, а вертикальные — 10... 20 мм.
В сауне для предотвращения ожогов и уменьшения прямого излучения раскалённой печи до её верхней части выкладывают стенку кирпичом, располагаемым в шахматном порядке, с отступом на полкирпича от корпуса печи. Кладку связывают со стенкой, примыкающей к топке.
Расстояние от корпуса металлической печи до любой деревянной стены с учетом защитного слоя кирпича должно быть не менее 250 мм. Так как мощное тепловое излучение верха печи сопровождается ещё и высокой температурой восходящего воздуха, деревянный потолок над печью также необходимо защитить. Был случай, когда при хорошей теплоизоляции боковых стенок печи, возгорание бани началось с потолка, который был изолирован в этом месте только слоем жести. Лучше изолировать тем же кирпичом, уложенным плашмя над зоной печки на металлических уголках, закрепленных, например, между балками перекрытия или на специальных, приваренных к печи, стойках. Размеры экрана над печью должны превышать ее собственные размеры в плане не менее чем на 250 мм.
Рекомендуется следующий порядок обустройства сауны
После изготовления фундамента сверху кладут по всему периметру двойной слой гидроизоляции и два ряда кирпичной кладки на цементном растворе. Со стороны топки кладка на четверть кирпича должна быть смещена в сторону сауны для удобства выгребания золы.
Пол комнаты отдыха желательно расположить на 2 слоя кирпичей ниже днища корпуса печи. Перед печью на пол укладывают 1 слой кирпичей размером не менее 51x51 см, так как стального листа не достаточно из-за сильного теплоизлучения.
Пол в сауне нужно поднять на 2-3 слоя кирпичей выше, что обеспечит лучший прогрев пола. Высота сауны — не более 220 см.
После установки печи приступают к кладке защитных кирпичных стен и трубы. При наличии камина выходной патрубок печки наращивают соответствующей стальной трубой, которую вводят в отдельный дымоход сечением в 1/2 кирпича в кладке камина, объединяющийся затем с основным его дымоходом (сечением не менее, чем в кирпич) в верхней части камина. Зазоры между кирпичной кладкой и металлической трубой печи должны быть не менее 5 мм по горизонтали и не менее 20 мм по вертикали для компенсации теплового расширения деталей печи при топке. Зазоры следует уплотнить асбестом или стекловатой. Печная труба не должна перевязываться с другой кладкой. С камином кирпичный экран можно перевязать 2-3 раза. В местах стыковки труб необходимо предусмотреть чистки. Задвижки печей устанавливают в кладке трубы.
При топке сухими дровами для нагрева сауны объёмом 20 м3 до температуры 100°С в летнее время требуется около часа.
При разогреве сауны печь топят интенсивно, далее для поддержания необходимой температуры оставляют гореть не более 4-5 поленьев.
Так как металлические печи очень производительны и рассчитаны на быстрый прогрев бани, чрезмерная неконтролируемая топка после достижения заданной температуры может привести к перегреву сауны и загоранию деревянных конструкций.