Переносной ящик пчеловода
Столярное дело /17-апр,2022,13;43 /
10702

Идея изготовления такого ящика пришла мне в голову после первого посещения пасеки, когда одновременно пришлось нести рабочий дымарь, стамеску, щетку-сметку, холстики и рамки.
Понадобилось: фанера 6 мм, рейки, шуроповерт или дрель, ножовка по дереву, угольник, рулетка, молоток, электролобзик, линейка металлическая, гвозди и саморезы.
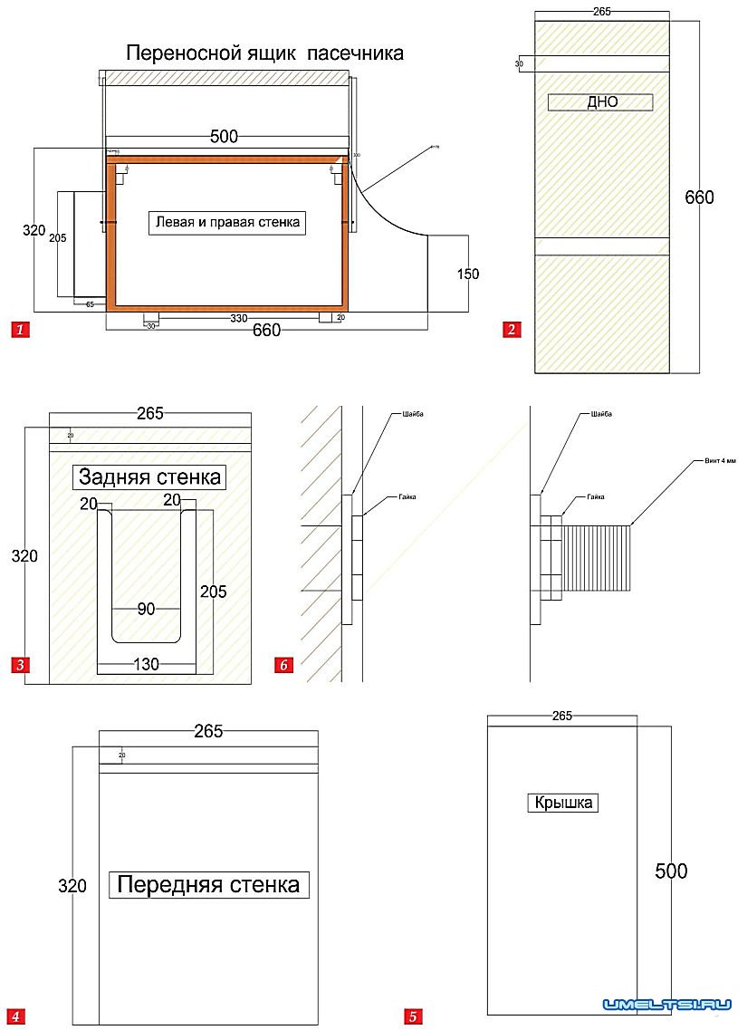
Ход работ по изготовлению ящика пчеловода
Размеры ящика выбирал из расчета габаритов моего дымаря и пчеловодных Дадановских гнездовых рамок.
Из остатков фанеры выпилил две заготовки 320x660 мм. По периметру прибил изнутри рейки 15x20 мм, отрезанные в размер, при этом на торцевых стенках верхние бруски опущены вниз на 20 мм, т.к. на них в дальнейшем будут опираться рамки с вощиной (рис). В размер изготовил остальные части ящика: дно, крышку, торцевые стенки (рис. 2-5).

Чтобы ящик не пачкался, к нижней его части прикрепил опорные бруски, которые при необходимости в дальнейшем легко можно заменить.
Крышку зафиксировал к основанию небольшими петлями, которые позволяют ей подниматься (фото 1).
В качестве упора крышки выступает ручка, которую я смастерил из фанеры 6 мм и круглой палочки d 30 мм (черенок от грабель). Длина боковых планок ручки — 300 мм. Боковые планки соединены с основанием винтами 4 мм через гайку и шайбу. На конце винт стопорится второй гайкой (рис. 6).
В передней части получился дополнительный карман. Он является как бы продолжением ящика, только боковые стенки скруглены для удобства работы. Можно просто обрезать наискосок (фото 2). Высота торцевой планки 150 мм, глубина 160 мм. Этот карман, для меня как палочка-выручалочка. Укладываю в него весь необходимый инвентарь, кроме рамок и дымаря.

На противоположной стороне ящика закрепил карман для дымаря (фото 3, 4). Размеры данного кармана взяты, исходя из габаритов моего дымаря.
На изготовление этого ящика потратил примерно 1,5-2 часа. Он получился вместительным — помещается 6-7 рамок с вощиной, на дно ящика складываю дополнительные брусочки 10x10 мм (фото 5). С такой работой справится даже неподготовленный в столярном производстве человек. Удачи всем в пчеловодном деле.
Чтобы рой не улетел
Понять, что рой вылетел, можно по громкому
гудению пчел. Как правило, они кружатся над кроной или садятся на дерево недалеко от улья. Если вы заметили рой, но пчелы еще не опустились на ветку, можно обрызгать их водой с помощью веника или садового распылителя. Чтобы снять рой с ветки, открытый ящик подставляем под клуб с пчелами и резким движением стряхиваем рой в ящик, можно помочь себе тем же веником. Я использую в качестве ловушки обычный пищевой полипропиленовый мешок с завязкой. Быстро закрываем крышку ящика и относим его в темное прохладное место на сутки, я опускаю в подвал. Через день (лучше всего вечером) опускаю пчел.