Как сделать деревянные филенчатые двери своими руками
Столярное дело /30-дек,2018,00;58 /
5497

Двери каждого дома можно сравнить с клапанами системы водоснабжения. Мы в любой момент можем пропустить сквозь них кого-то или что-то, если же конечно хотим этого, а если нет, мы всегда можем ограничить вход или доступ. К примеру, если это касается тепла, свежего воздуха, нежелательных гостей или незнакомых людей. На самом деле дверная конструкция довольно простая и в то же время сложная. Большинство из вас скажет: «А что же там сложного? Обычная подвесная деревяшка или металл на подвесках. Хочешь - открываешь, хочешь - закрываешь. Вот и все особенности». Но не тут-то было. Попробуйте хотя бы один раз сделать дверь самостоятельно, при этом не забывая и о том, что на это нужны специальные знания, умения и навыки.
Если говорить об основных материалах, которые используют для изготовления дверей на бытовом уровне, так это металл и дерево. Поэтому, как вы уже догадались, двери бывают металлические и деревянные. Стоит также отметить, что как деревянные, так и металлические двери, подразделяют на те, которые имеют одно, полтора и два полотна. То есть по-сути они создаются для разных проемов и бывают разной ширины.
Тем, кто не имеет возможности сделать деревянные двери своими руками предлагаем посетить сайт производителя, который делает _vinchelli.ru деревянные двери на заказ.
Собственноручное изготовление деревянной филенчатой двери

Подбираем нужный материал
Тут самое главное уяснить для себя: «Если захотел сделать дверь с нуля, тоесть своими руками, значит обязательно нужно подобрать весь необходимый для работы материал. Это нужно делать, прежде всего». Не стоит также забывать и следующее: поскольку местом для создания входных и межкомнатных дверей вы выбрали свой дом, то, как сырье для их создания, выбирайте прочные породы, хорошо поддающиеся обработке. К примеру, можно использовать следующие:
1. Сосна – порода, которая весит немного, стоит недорого и достаточно хорошо поддается обработке. Правда она не всегда подходит для дверного полотна, ведь спустя некоторое время может начать рассыхаться.
2. Дуб – порода, имеющая достаточно прочную и долговечную древесину. Правда у дуба есть один недостаток – трудно поддается ручной обработке и есть вероятность раскола в процессе работы с ним.
3. Орех – порода, хорошо поддающаяся обработке, а также устойчивая к разнообразным повреждениям и влаге.
4. Ольха – легкая и мягкая порода. Обрабатывается отлично, правда малоустойчива к сушке и загниванию.
Процесс изготовления полотна
Изготовление полотна – это и есть самый важный во всем процессе этап. Есть множество способов, благодаря которым можно собственноручно сделать деревянную дверь. Важнее всего – учитывать размер проема, под который готовится конструкция и четко соблюдать все этапы работы.

Первым делом, произведите замеры дверного проема. Исходя из полученных параметров – изготовьте каркас для дверей. Далее на одну из его сторон набейте доски. Можно улучшить звукоизоляцию. Для этого просто заполните утеплителем всю внутреннюю часть. После завершения процесса звукоизоляции, нужно набить доски, но уже на другую сторону. Как вариант входной двери для дома, прекрасно подойдет филенчатая дверь с глухими вставками.
Если вам хочется изготовить межкомнатные двери, то тут есть еще больше вариантов.
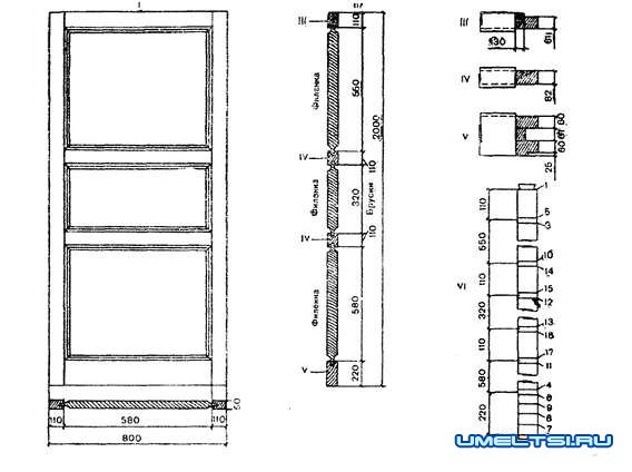
К примеру, можно изготовить двери размера «стандарт». Параметры такой двери следующие: коробка – 200 см * 90 см, дверь – 192 см * 82 см. Для того чтобы изготовить такую дверь, возьмите доски размером 50 мм * 110 мм. В целом нужно 5 филенок из клееного массива или цельного массива дерева.
Начальный этап работ – изготовка каркаса двери. Нужно отрезать боковины размером по 192 см, а также поперечины размером 72 см. Не забывайте учитывать соединение «шип-паз» (примерно 5-6 см) и ширину боковин (оставшуюся). Тоесть в результате вырезания и соединения пазов и шипов, должен выйти вот такой вот каркас.

Далее в вертикальных боковинах сверлим специальные отверстия под шканты, проходящие сквозь шипы поперечин. Это делается с целью увеличения прочности самой двери.

Изготовление филенок – это следующий этап, довольно сложный и слишком ответственный. Тут же нужно будет подготовить сам каркас под установку филенок. Для начала возьмите фрезу и на полотне каркаса вырежьте пазы под установку филенок. Далее нужно сделать филенки.
Конечно, лучше всего брать цельные куски дерева, ведь тогда у вас получится более красивая филенка. После завершения изготовления филенок, вставьте их в дверной каркас.

Декорирование самодельной двери
Итак, вы закончили основу для полотна, теперь можно приступить к следующему этапу работы. Его суть – обработка и декор самодельной двери. Для начала разберемся с процессом собственноручного изготовления входной деревянной двери. Тут есть несколько доступных для рассмотрения вариантов. Помните: антисептическая пропитка – обязательный этап. Далее можно выбрать один из доступных вариантов:
облицовка с использованием дермантина;
пропитка с помощью морилки, затем вскрытие лаком;
оклейка ПВХ или шпоном.

Если хотите придать своим межкомнатным дверям уникальности и некой изюминки – придумайте красивый и оригинальный дизайн, затем воплотите его в жизнь своими руками. Для людей с богатой фантазией – это широкое поле для действий. Вот, к примеру, самые распространенные варианты:
покраска;
оклейка обоями;
покрытие ламинатом, шпоном или пленкой;
сохранения текстуры древесины при помощи восковой пропитки, лака или морилки;
нанесение на дверь рисунка;
украшение тканью.

Завершающий этап: установка
Установить уже готовую дверь можно используя разные способы. Все зависит от типа конструкции. К примеру, процесс монтажа раздвижных дверей существенно отличается от монтажа распашных. Так же и с межкомнатными и входными дверями. Процессы их изготовления и крепления практически схожи, но есть одно маленькое «но»: для входных дверей нужен порог и деревянная коробка.
