Туалет деревянный своими руками
Столярное дело /28-фев,2012,01;31 /
43653

Любой индивидуальный застройщик, начиная освоение участка или возведение дома на нём, просто вынужден сначала построить хотя бы небольшой и простой туалет. Хотя отмечу, что большой капитальностью эта постройка не отличается даже на участках с особняками. Но и для современных биотуалетов лёгкая будочка с ровным полом необходима (именно такая, установленная на кирпичи, и изображена на чертеже общего вида).
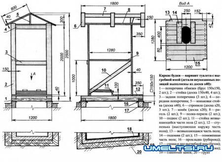
При выборе места необходимо соблюсти некоторые санитарные требования. Если на участке есть колодец, то туалет необходимо расположить не ближе, чем в 20 м от него, а также на расстоянии не менее пяти метров от жилого дома. При наличии выгребной ямы надо оставить и проезд к туалету для специального автотранспорта. Вариант туалета с выгребной ямой изображён на чертеже каркаса будки.
Что касается выгребной ямы, то её стенки и дно я сделал бетонными и глубиной около 2 м, причём дно выполнил с небольшим уклоном к задней части Стенки и дно ямы можно выложить из керамического (красного) полнотелого кирпича, природного камня и даже из дерева. Но для обеспечения герметичности в первом (кирпичном) варианте яму изнутри следует оштукатурить, а во втором — заделать швы просмолённой паклей. В песчаных грунтах снаружи стенок и под дном ямы необходимо устроить глиняный замок толщиной не менее 250 мм, а изнутри (во всех вариантах) — ещё и покрыть битумом. Желательно стенки немного поднять над уровнем земли, чтобы в яму не попадали дождевые и талые воды.
Будка туалета — каркасной конструкции. Основные силовые элементы каркаса изготовлены из досок толщиной около 40 мм, шириной 150 мм и скреплены гвоздями.
Установлена будка на довольно мощную обвязку из бруса (150x150 мм) лиственницы (можно и из дуба или других, трудно поддающихся гниению пород дерева). Брусья обвязки предварительно тщательно обработаны (пропитаны) антисептиком. Сопряжения между элементами выполнены «в полдерева без остатка» и скреплены гвоздями. Длины продольных и поперечных брусьев обвязки соответствуют размерам выгребной ямы и уложены на её стенки через прокладки из рубероида.
Забегая вперед, отмечу следующее Поскольку длина обвязки больше длины будки туалета, то пришлось удлинить передний и задний свесы крыши. Сами же выступы обвязки за пределы будки тоже использовал с пользой: впереди — в качестве ступеньки, а сзади — как люк для «доступа» к выгребной яме.
Основанием будки служит пол. Он сделан ступенчатым из доски-сороковки и снизу, как и брусья обвязки, тщательно обработан антисептиком.
В возвышающейся части вырезано продолговатое поперечное отверстие, а доски вдоль него соединены накладками, служащими одновременно и подошвами В углах пола вырезаны пазы по сечению досок-стоек. Стойки вставлены в пазы и прибиты к полу, а по высоте скреплены поперечинами, ригелями, подкосами а также элементами крыши.
Боковые ригели, как промежуточные -так и верхние, уложены плашмя — первые служат ещё своеобразными попками и перилами, а ко вторым удобнее крепить стропила крыши.
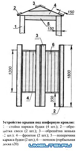
Крыша будки двухскатная, что придаёт туалету вид домика. В качестве кровли использован оцинкованный стальной лист. Как вариант, привожу и чертёж устройства обрешётки крыши под шиферную кровлю. Отличия её в том, что роль стропил в этом случае выполняют фронтоны, а обрешёткой служат прогоны — коньковые и нижние. Поскольку крыша металлическая и в зной сильно нагревается, в качестве теплоизолирующего слоя я в будке сделал потолок из горбыльных досок разной толщины, лишь выравняв их кромки.
Стены будки лучше всего обить вагонкой. Сплачивание таких досок уже само по себе практически устраняет щели: пусть туалет не утеплённый, но сквозняки в нём тоже излишни.
Нижний срез досок стен сделан «косым» — попавшая на стены дождевая вода скатывается вниз и стекает с них, как со слезника.
Дверь сделал арочного типа — мне такая нравится больше, чем прямоугольная, хотя это дело вкуса. Её, как и стены, изготовил из вагонки. Между полом и низом двери оставил* небольшую щель, а вверху двери вырезал маленькое окошко. Эти отверстия хорошо вентилируют внутреннее пространство будки, не создавая сквозняка. Доски двери скрепил снаружи двумя слегка наклонными (причём в разные стороны) поперечинами. Кроме необходимой жёсткости, эти поперечины придают туалету какой-то старинный облик и делают его похожим на будку заставы на тракте при въезде в город.
Для защиты от влаги все наружные деревянные поверхности будки (стены, дверь) обработал недорогим водоотталкивающим текстуролом. Из гигиенических соображений, чтобы при необходимости можно было помыть, покрыл пол, а также стены и дверь на высоту около одного метра морозоустойчивым лаком. Остальные внутренние поверхности стен и потолок оставил неокрашенными. Ведь будка сделана из дерева хвойных пород, и источаемый ими запах служит естественным озонатором туалета.
Для уменьшения же попадания неприятных запахов внутрь туалета из выгребной ямы снаружи ещё установил асбоцементную трубу с крышкой-дефлектором. Саму же выгребную яму в задней части прикрыл наклонной фанерной крышкой с небольшими напусками — чтобы осадки не попадали в яму. Снизу крышку обработал антисептиком, а сверху обил рубероидом. Для трубы в крышке вырезал паз, который служит и фиксатором (или ограничителем).
А.МАТВЕЙЧУК, г. Заводоуковск, Тюменская обл.
Чертеж туалета
(Все чертежи от нажатия увеличиваются)