Обмеры помещений: в чем особенности работ

Обмеры помещений представляют собой комплекс работ, которые проводятся с целью определения размеров, технических особенностей объекта. Они нужны еще и для проверки соответствия тех или иных параметров помещения выдвигаемым требованиям проекта.
Куда обратиться за помощью
Если вы заинтересованы в проведении обмеров помещений, вам стоит обратиться к проверенным и хорошо себя зарекомендовавшим специалистам. Они выполняют свою работу на высоком уровне качества. Так что вы точно останетесь довольны полученным результатом. Если вы обратитесь за услугой в надежную компанию, то можете быть уверены в том, что обмерные работы и съемку фасадов, если в этом возникнет необходимость, будут выполнять только опытные инженеры-геодезисты, обладающие хорошим профильным образованием. Можете быть уверены в том, что специалисты в обязательном порядке будут соблюдать выполнение условий вашего договора, составят чертежи по всем правилам, со строгим соблюдением существующих на данный момент стандартов.
Что важно знать об обмерных работах
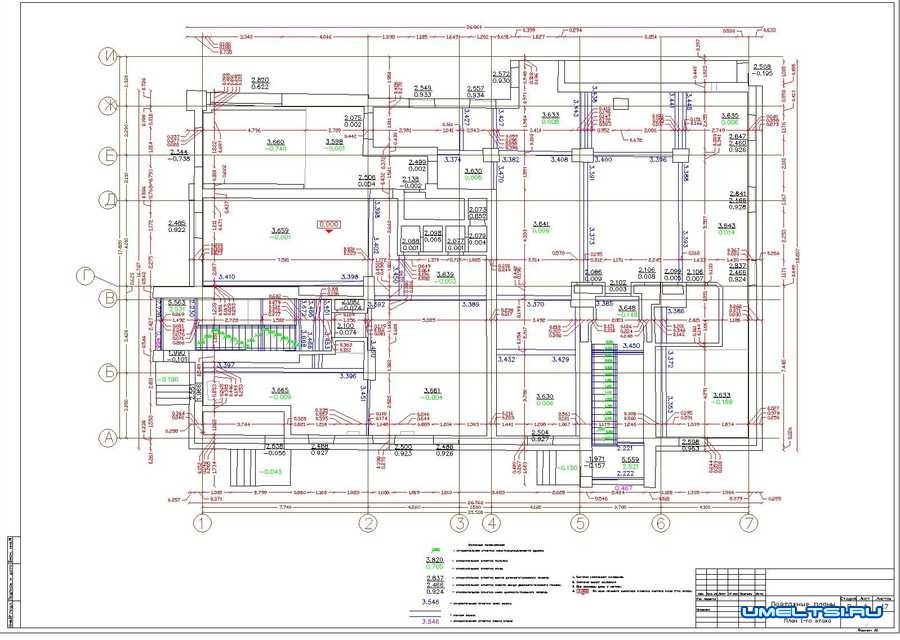
В первую очередь хочется сказать о том, что обмерные мероприятия проводятся по отношению к комнатам и отдельным секциям в жилых домах. Также подобные работы выполняют в помещениях хозяйственных сооружений, производственных зданий, торговых павильонов. Специалисты обмеривают объект по периметру в цокольной части. Это требуется для определения застроенной территории. Замеры нужны и на уровне окон, что позволяет подсчитать общую площадь объекта.
При выполнении своей работы инженеры-геодезисты в обязательном порядке принимают во внимание элементы экстерьера помещения, отдельные архитектурные его составляющие, а также фигурную кладку стен. Если будут проигнорированы все эти моменты, то вы не сможете получить достоверные сведения об интересующем вас объекте. Для измерительных мероприятий используются лазерная рулетка и специальная измерительная лента.
Обмер помещений – довольно сложное мероприятие, которое требует высокой точности. После его проведения специалисты должны проверить соответствие размеров объекта внутри и снаружи. Для получения нужной информации следует просуммировать все размеры помещений. Это же касается толщины межкомнатных стен и перегородок. В итоге площадь объекта с учетом внешних измерений должна совпадать с суммой площадей перегородок, стен и всех комнат. Если так оно и есть, то все замеры были проведены правильно.
Важно понимать, что при проведении замеров внутри помещений допускается погрешность 1 сантиметр по всему периметру объекта. Специалисты измеряют оконные и дверные проемы, разные присутствующие в помещении конструктивные элементы. При этом крайне важно соблюдение определенных требований. В обязательном порядке проводится замер фактического размера дверных и оконных проемов на объекте. Если нужен обмер лестничной клетки, то в данном случае замеряют ее площадь. В отчете указывается количество ступенек и направление подъема. Что касается элементов санитарно-технических коммуникаций, то их обмеры не проводятся, но в обязательном порядке на чертеже указывают размещение. Это необходимо для внесения информации в план объекта.
Внимание уделяется и воздухозаборам, вентиляционным шахтам, защищенным входам и выходам. Если есть доступ к этим составляющим объекта, то проводятся их обмеры. Если такой возможности нет, то они вносятся в документацию схематически.