Сверлильный своими руками
Станки и инструменты /25-авг,2010,20;49 /
72067

При изготовлении печатных плат приходится сверлить множество отверстий. Лучше всего делать это на сверлильном станке. Но у многих ли радиолюбителей он есть? А ведь его не так уж сложно сделать.
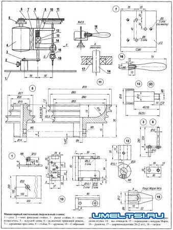
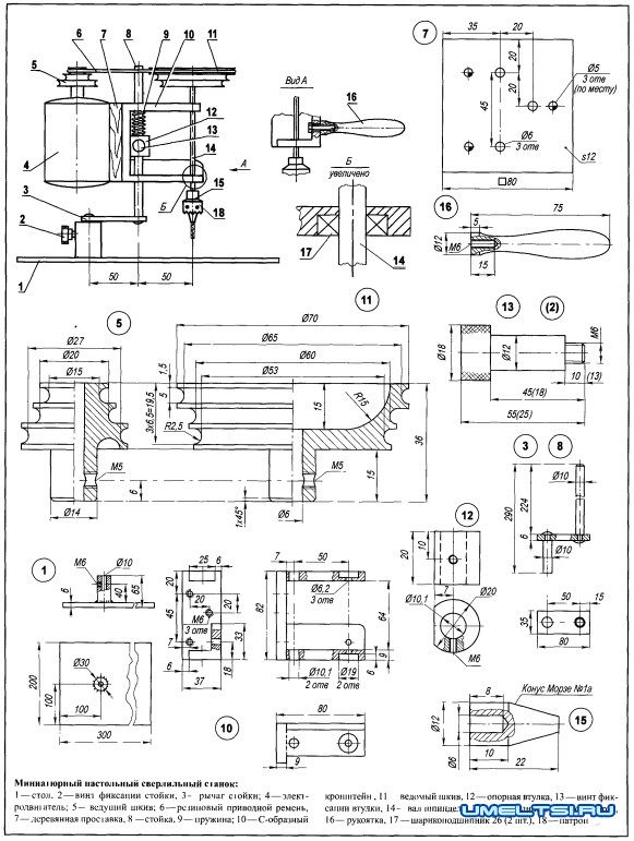
Мой станок состоит из стальной плиты размерами 300x200x5 мм, к которой приварен стакан с винтом фиксации поворотного рычага с вертикальной стойкой — это позволяет подвести сверло к любой точке обрабатываемой печатной платы независимо от ее размеров.
На стойку надет кронштейн с электродвигателем, шкивами и шпинделем. Этот узел может скользить по вертикальной стойке и возвращаться в исходное положение пружиной, опирающейся на бронзовую втулку с винтом фиксации Мб.
Кронштейн изготовлен из алюминиевого сплава и представляет собой С-образную скобу, в верхней и нижней полках которой просверлены отверстия диаметром 10,1 мм для верхнего стержня стойки и расточены посадочные места для двух шарикоподшипников. В последних вертикально установлен вал шпинделя длиной ~ 150 мм (уточнить по месту) — стальной стержень из прутка диаметром 6 мм. К нижней полке кронштейна примыкает ребро жесткости с отверстием диаметром 6,2 мм под рукоятку управления станком.
В вертикальной стенке кронштейна проделаны три отверстия Мб для крепления деревянной проставки; к ней, в свою очередь, привинчивается электродвигатель привода.
Электродвигатель типа КД-30 мощностью 50 Вт (220 В, 2800 оборотов в минуту) с бумажным конденсатором 4 мкф х 400 В управляется микровыключателем, расположенным на деревянной проставке, в непосредственной близости от рукоятки
Круговые повороты кронштейна на стойке ограничивает лыска цилиндрической бронзовой втулки, обращенная к его вертикальной стенке. Кронштейн скользит по ней при сверлении.
На нижний конец вала напрессован переходник с конусом Морзе №1а, на который надет кулачковый патрон для сверл диаметром не больше 6 мм, а на верхний — трех-ручьевой ведомый шкив, изготовленный из алюминиевого сплава. В верхней его части для облегчения выбрано сферической углубление
Ведущий шкив, соединенный с ведомым круглым резиновым приводным ремнем от магнитофона, также выполнен из алюминиевого сплава и имеет тороидальную облегчающую проточку.
При работе на своем сверлильном станке я подвожу вращающееся сверло к точке, где должно быть отверстие, и нажимаю на рукоятку. Проделав отверстие, отпускаю ее. Пружина разжимается и возвращает кронштейн в исходное положение Сверло отводится от печатной платы. Таким образом, значительная часть нагрузки с рук снимается. Просверлить сотню-другую отверстий в этих условиях не составляет труда.
Чертежи своми руками свердлильный станок
Нажимаем-увеличиваем