Станок для заточки ножей деревообрабатывающего станка
Станки и инструменты /17-июн,2019,17;55 /
9087

Посмотрев в Интернете различные варианты конструкций для заточки ножей и выбрали схему с подвижной кареткой наждачного камня. Но одно дело картинки. а другое - изготовление чертежей и сборка полноценного станка своими руками.
Рама станка
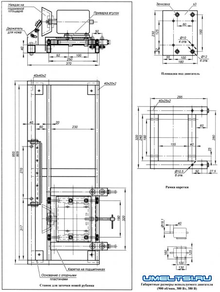
Заточный станок состоит из рамы основания с опорными пластинами крепления к верстаку, каретки на подшипниках. подвижной площадки подачи на двух направляющих и четырех втулках, держателя ножа с регулируемым углом заточки и электродвигателя с наждачным камнем. Для его изготовления потребовались покупные комплектующие изделия: подшипник 6200 (8 шт.), болты М10х70 мм (10 шт.) и М8х30 мм (14 шт.), шайбы 10 мм (10 шт.) и 8 мм (14 шт.).
Работа по изготовлению началась с нарезки деталей для рамы основания Для точности сварочных работ я использовал чугунную плиту размерами 400x800 мм от старого фрезерного станка. К ровной плите струбцинами прижал трубы прямоугольного сечения: две продольных 25x40 мм. одну продольную 40x40 мм и две поперечных 25x40 мм.
Затем штангенциркулем проконтролировал точность размеров и прихватил все электродуговой сваркой. Сразу же приварил по углам опорные пластины, а по центру - связующую полосу. После этого перевернул раму и снова прижал
ее к плите струбцинами, проварив все окончательно.
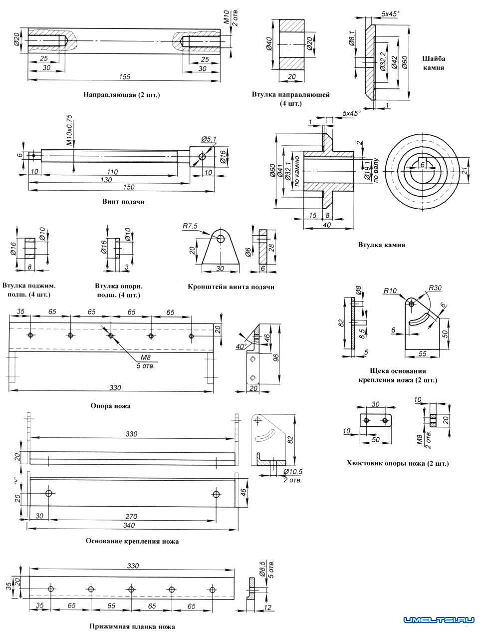
Таким же образом сварил раму каретки и. разметив на ней восемь отверстий согласно чертежу, просверлил их ручной электрической дрелью. Сначала диаметром 5 мм, затем рассверлил до диаметра 10,5 мм. Еще сделал отверстие диаметром 12 мм по оси симметрии для винта подачи. Дополнил конструкцию двумя гайками М10 для болтов, поджимающих подшипники, и гайкой М 10x0.75 винта подачи.
Собираем каретку
Тем временем приятель принес заказанные у токаря детали: две направляющих диаметром 20 мм с внутренней резьбой М10. четыре втулки для направляющих. четыре втулки для установки опорных и четыре втулки - для поджимных подшипников, втулку и шайбу для камня, а также - винт подачи.
Собрав каретку, окончательно затянули гайки и болты после проверки прилегания всех четырех опорных подшипников к трубам рамы. Поджимные подшипники также выставили ровно к продольной трубе рамы без зазоров. Проверка движения каретки по раме порадовала, но основная работа была впереди.
Из листовой стали толщиной 3 мм я вырезал пластину размерами 180x230 мм. Затем разметил на ней отверстия крепления двигателя и отверстия приварки втулок направляющих. Под болты двигателя сделал отверстия диаметром 10 мм. А под электрозаклепки - диаметром 12 мм с зенковкой на всю глубину.
Для точности сборки (обеспечения параллельности продольных труб рамы) из березовой доски выпилил ПО две проставки длиной по 60 мм и 92 мм соответственно. С их помощью зафиксировал правильное положение втулок на направляющих: первая пара в положении до упора в раму справа, вторая пара - в 100 мм от рамы.
Следует отметить, что полочки квадратных труб рамы не имели прогиба, иначе подшипники будут касаться ее своими кромками или проваливаться.
Затем поверх втулок положил готовую пластину крепления двигателя, выровнял и загрузил чугунной чушкой. Поочередно приварил все втулки по отверстиям с зенковкой. установил винт подачи, приварив упорный кронштейн к площадке двигателя. Закрепил винт шайбой и шплинтом и покрутил винт подачи вправо-влево, убедившись в свободном движении площадки двигателя. Замечательно!
Двигатель с камнем-чашкой прикрутил четырьмя болтами М8 с шайбами и гайками. Затем приварил к площадке у двигателя стойки ручки управления движением и пластину крепления пускателя. Установил деревянную точеную ручку, пускатель, электрокабель под напряжение 380 В с вилкой. Из листа алюминия вырезал и загнул по месту защитный кожух для наждачного камня и закрепил его к площадке четырьмя винтами М5.
Крепление ножей
Работая над станком, постоянно приходилось рассматривать различные технические решения: от выбора крепления ножа в нужном положении до устройства регулировки угла заточки. Немаловажно было определиться и с выбором конструкционного материала, и как обойтись без фрезерных работ.
Выход нашелся неожиданно, когда приятель принес два швеллера высотой по 100 мм и длиной по 330 мм с прямыми полками размерами 46x8 мм. После их обработки в соответствии с чертежами получились основание, опора ножа и прижимная планка. А из обрезков швеллеров я изготовил две щеки с отверстием и пазом и два хвостика с резьбой М8. Все сварил и получил узел для установки затупленного ножа. В раме основания по месту разметил и просверлил два отверстия под болты М10 крепления узла держателя ножа.
Также потребовалась настройка положения камня с двигателем и параллельности движения вдоль узла держателя ножа.
Для испытаний станка использовали три самых затупленных ножа. Первый из них установили, прижав планкой с пятью болтами М8. Включив двигатель и равномерно перемещая каретку вперед-назад винтом подачи, я подвел камень к ножу до первой искры. Затем плавно довел режущую кромку ножа до самого острого состояния, затратив на это всего пять минут! А затем заточили второй и третий ножи. Результат порадовал.
Заключительным этапом изготовления станка стала покраска рамы в синий цвет, а узла держателя ножа - в красный. А его законный хозяин приделал к нему четыре резиновых опорных ножки.
Чертежи и размеры деталей заточного станка
Анатолий МАТВЕЙЧУК, г. Заводоукоеск, Тюменская обл.