Как самому сделать бетономешалку (чертежи)
Станки и инструменты /10-мая,2009,15;34 /
140892

В русском языке немало слов-омонимов, которые произносятся и пишутся одинаково, а значение имеют разное и даже противоположное. Такая судьба, например, у слова «мешать». В первом значении — препятствовать, а в другом — соединять, делая смесь однородной.
Интересно, что в принципе действия такой машины, как бетономешалка, вполне уживаются оба этих понятия: одни детали предназначены для того, чтобы перемещать часть материала, загруженного в барабан, а другие — чтобы не давать перемещаться другой его части, в результате чего и происходит перемешивание компонентов.
Так вот, затевая стройку — большую, не очень или даже малую, — без самодельной бетономешалки не обойтись: она поможет сэкономить силы и время, а качество приготавливаемых смесей — улучшить.
Агрегат этот, конечно, можно и купить (в продаже их немало — разных моделей и конструкций). Только ведь в такое время деньги нужнее для приобретения материалов, а бетономешалку можно сделать и самому — к примеру, вот такой конструкции.
Предлагаемая самодельная бетономешалка состоит из трех основных узлов: тележки-основания, барабана и привода (ручного, механического или электрического). Барабан с приводом монтируются на раме, а рама — шарнирно на основании. Рама сварена из дуги-рукоятки и дуги-основания, соединенных между собой накладками и вставками. Рукоятка выполнена из трубы диаметром 34 мм, а основание — из трубы диаметром 51 мм. К основанию приварен кронштейн, на котором монтируются смесительный барабан с приводом.
Несущие детали основания выполнены из швеллера № 6,5 со стенкой размером 65 мм (толщина 4,4 мм) и полками по 36 мм. Все соединения этих деталей — встык, усилены косынками из листовой стали.
Смесительная емкость для самодельной бетономешалки (барабан) — традиционной грушевидной формы. Для ее получения корпус сварен из стального листа толщиной 3 мм и составлен из трех простых деталей: плоского дна и двух усеченных пустотелых конусов (нижнего и верхнего) с одинаковыми большими основаниями. Диаметр малого основания нижнего конуса соответствует диаметру дна, а погрузочно-разгру-зочное отверстие верхнего конуса сделано с отбортовкой (закраиной). Внутри барабана к его стенкам приварены три ребра жесткости из продольно разрезанной тонкостенной стальной трубы диаметром 60 мм.
Эти ребра еще выполняют дополнительно роль лопаток. Сами же лопатки сделаны из стальной полосы сечением 30x3 мм и прикреплены одним концом ко дну, а другим — к стенке верхнего конуса. Ко всему, они служат еще и распорками. Все эти детали обеспечивают необходимую жесткость смесительному барабану при сравнительно небольшой толщине его стенок, а также способствуют эффективному перемешиванию компонентов, делая смесь однородной.

Привод бетономешалки — ручной, или, как сейчас говорят, мускульный, но сути это не меняет. А чтобы приводить в действие его мог не только недюжинной силы мужчина, но даже «маломощный» человек, он оборудован оригинальной клиноременной передачей, которая смонтирована на небольшой раме. Особенность передачи состоит в том, что для обеспечения удобства расположения и вращения рукоятки привода шкивы (ведомый и ведущий) расположены не как обычно — в одной плоскости, а под углом друг к другу.
Ну а чтобы клиновой ремень не выскакивал из ручьев шкивов, в местах пересечения плоскостей (перегиба ремней) установлены поддерживающие ролики. Клиноременная понижающая передача значительно уменьшила необходимый крутящий момент на рукоятке. Это позволило выполнить ее совсем небольшой длины, что также повысило удобство вращения.
Рукоятка привода сделана съемной — для этого достаточно только демонтировать конический штифт, фиксирующий ее на валу. С той же целью облегчения работы на агрегате валы приводного механизма смонтированы в шариковых подшипниках. Для исключения попадания пыли и грязи корпуса подшипников закрыты сальниковыми уплотнениями или крышками.
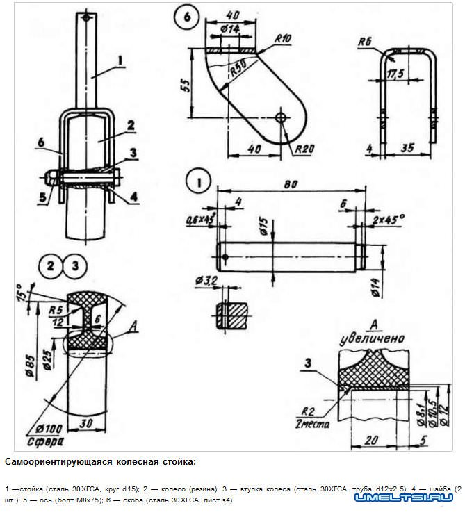
Бетоно - растворомешалка — малогабаритная и сравнительно небольшой массы (около 60 кг), было бы нерационально не использовать эти ее достоинства и не сделать ее передвижной. Поэтому основание установил на четыре колеса. Однако в первом варианте (на фотографии) колеса сделал неповорачивающимися. Эксплуатация показала, что такой вариант их исполнения не самый удачный: перемещать агрегат по прямой, конечно, было можно, а вот поворачивать — очень неудобно и даже тяжело: для этого приходилось приподнимать передние или задние колеса (иногда при загруженной «груше»). Поэтому, поругав себя за непредусмотрительность, сделал другие колеса — самоориентирующиеся (см. чертежи бетономешалки) — с ними бетономешалку можно разворачивать на месте даже загруженную и без особых усилий.
Чертежи бетономешалки
Еще одно достоинство агрегата — его привод можно легко механизировать, поставив двигатель внутреннего сгорания или электромотор с соответствующим редуктором. Сам же агрегат и переделывать не надо, а следует только перебросить клиновой ремень со шкива на валу рукоятки на шкив выходного вала редуктора мотора, а саму рукоятку с приводного вала снять.
И в заключение — пара советов.
Первый. В бетонорастворомешалке можно приготовить практически любую строительную смесь на основе минеральных вяжущих: цемента, извести, гипса и даже глины. А вот перемешивать компоненты лучше сначала всухую, а уж потом добавлять понемногу воды, в процессе перемешивания. При этом желательно воды наливать определенный объем, в зависимости от количества цемента в замесе (водо-цементное отношение около 0,4). Излишек воды, конечно, облегчает и ускоряет процесс перемешивания, но значительно снижает качество смеси — делает ее пористой.
Второй совет. После окончания работы, даже преодолевая усталость, надо очистить все части механизма от остатков смеси и вымыть их. Здесь избыток воды не помешает.
Е.ЕВСИКОВ,
г Люберцы, Московская обл.