Самодельный деревообрабатывающий станок
Станки и инструменты /25-апр,2010,10;19 /
144187
Деревообрабатывающий многопрофильный станок

Народная мудрость гласит, что мужчина прожил жизнь не зря, если посадил дерево, вырастил сына и построил дом.
И если для первых двух дел особых механизмов не требуется, то при строительстве дома без них не обойтись. И среди них наиболее необходимы деревообрабатывающие механизмы — циркулярная пила, электрорубанок, фрезерная машинка, приспособление для точения или вместо них — один многофункциональный станок. При этом не важно, какие стены у дома: кирпичные, бетонные или какие-то другие. Без деревянных конструкций и материалов все равно не обойтись, поскольку дерево — строительный материал не только универсальный, но и незаменимый, особенно для внутренней отделки.
Для тех застройщиков, которые собрались возводить дом, но не имеют «лишних» денег на вспомогательные механизмы, рекомендуется изготовить дереворежущий станок, на котором можно выполнять множество операций: поперечное и продольное (роспуск) резание, строгание и фугование, точение и фрезерование, сверление и шлифование, изготовление шипов и выборку пазов. Ну а при такой многофункциональности станок может пригодиться и тем, для кого деревообработка является ремеслом.
Конструкция представляемого дереворежущего станка при всех его перечисленных возможностях вообще-то классическая и довольно простая
Большинство деталей и узлов доступны для изготовления своими руками в условиях домашней мастерской. Однако некоторые узлы, например режущую головку, лучше заказать специалистам.
Сварных соединений немного, но и некоторые из них можно заменить клепкой или резьбовыми соединениями.
Материал силовых деталей (балок, стоек, ригелей) — в основном сортовой стальной прокат. Он немного утяжеляет станок, но значительно упрощает его изготовление.
Прежде, чем начать разговор о конструкции станка, — один совет.
При изготовлении из уголка рамки, угольника и т п. желательно после разметки мест сгибов вплотную к сгибаемой полке просверлить технологическое отверстие, сначала тонким сверлом (диаметром 4 — 5 мм), а затем сверлом побольше (диаметром 8 —10 мм). После этого можно вырезать в полке «клинышек» (равнобедренный прямоугольный треугольник) и загибать заготовку Операция в этом случае идет легко и обеспечивается высокая точность изготовления.
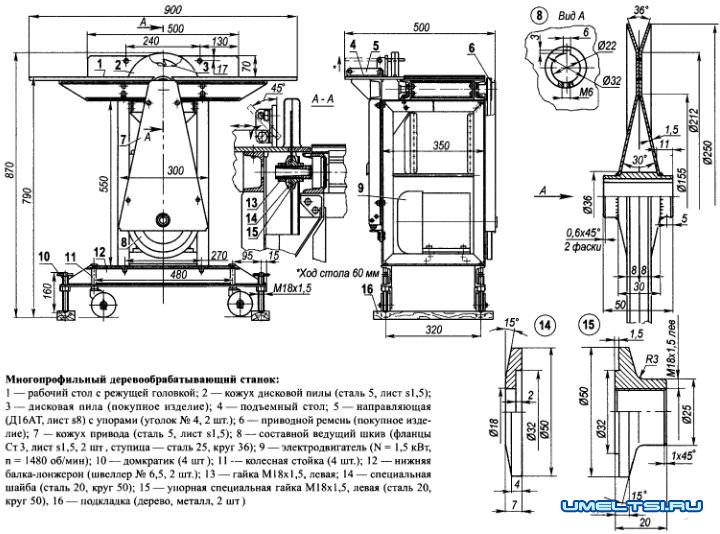
Чертежи и схемы циркулярного деревообрабатывающего станка
Рама станка состоит, в свою очередь, из двух рамок, соединенных между собой внизу опорами под двигатель, а вверху — ригелями. Все эти элементы — из уголка № 4 Рама опирается на балки-лонжероны основания, а вверху к ней на балках-царгах крепится рабочий стол. Балки выполнены из швеллера № 6,5. На концах балок основания смонтированы колеса, благодаря которым довольно тяжелый станок (массой около 100 кг) по силам перемещать в пределах помещения или из одного в другое, рядом расположенное помещение даже одному человеку Для работы механизм устанавливается на деревянные или металлические подкладки с помощью винтовых домкратиков, смонтированных здесь же на концах балок рядом с колесами. Внизу рамы на ложементе, обеспечивающем натяжение приводных ремней, смонтирован электродвигатель мощностью 1,5 кВт (но можно и больше) и скоростью вращения 1450 об/мин. (мотор с меньшим числом оборотов в минуту устанавливать нежелательно). Для пуска и работы электродвигателя в схему включен блок конденсаторов, коробка с которыми закреплена в верхней части рамы.
Стенки рамы частично закрыты дюралюминиевым 1,5-мм листом, а внутри смонтирован наклонный лоток, по которому стружки и опилки из-под режущей головки удаляются в установленную рядом емкость или мешок Листы к раме приклепаны.
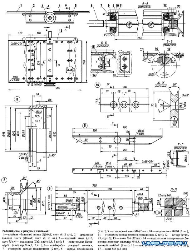
Главная часть станка — рабочий стол с режущей головкой.
Рабочий стол выполнен из дюралюминиевого листа толщиной 8 мм и состоит из четырех плит, двух малых (срединных) и двух больших (крайних). Плиты попарно — зеркально отображенные. Все отверстия в них под крепежные винты с потайной головкой — одинаковые, а их расположение в парных плитах также зеркально отображенное. Встречные кромки срединных плит, обращенные к режущей головке, выполнены со скосом 30° внутрь. Под задние плиты (срединную и крайнюю) подложены планки толщиной 1,5 мм, равной глубине резания при строгании заготовок.
Режущая головка — основной механизм станка, от которого зависит качество обработки заготовок По конструкции она не столь уж и сложна, но качество ее изготовления должно быть высоким. При недостатке опыта и при возможности лучше ее (а заодно и заднюю бабку с центром) заказать специалистам, у которых имеется хорошее металлорежущее оборудование.
Важнейшая деталь головки — довольно объемный и массивный барабан-вал с консольными концами в подшипниках качения 80104. Непосредственно на барабане монтируются четыре ножа. Количество ножей, скорость вращения барабана и длина рабочего стола по качеству обработки обеспечивают не строгание, а уже фугование заготовок. Все ножи одинаковые — у каждого по четыре режущие кромки (лезвия). Конструктивно закрепление ножей на барабане выполнено так, что при затуплении одного лезвия нож переставляется: поворачивается или перевертывается. Заточка ножей производится редко — только при затуплении всех кромок. При необходимости на барабане вместо ножей можно закрепить в специальной оправке наждачную шкурку или войлок и производить на станке плоскошлифовальные или полировальные операции.
На один конец вала насажен приводной шкив клиноременной передачи. На другом — монтируются всевозможные инструменты и приспособления, обеспечивающие станку многофункциональность Основной же инструмент, устанавливаемый здесь, —дисковая пила Закрепляется она между двумя специальными шайбами (упорной и прижимной) и затяжной гайкой. У гайки и упорной шайбы, как и на конце вала, — левая резьба М18х1,5.
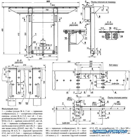
При работе с дисковой пилой к рабочему столу пристыковывается подъемный столик (по длине он тако.й же, как и рабочий стол, но поуже), на котором закрепляется болтами направляющая с упорами. Подъем-опускание этого столика осуществляется передвижением его рамки на раме станка. Конструкция рамки на фото и чертежах немного разная1 сначала верхняя балка рамки крепилась к стойкам болтами (на фото), а затем балка была приварена к стойкам сверху (на чертеже). На плите подъемного стола монтируется направляющая с упорами. Направляющую можно устанавливать под углом до 45° относительно плоскости стола, чтобы можно было выполнить косой срез заготовки (у конструкции на фото такой возможности еще не было — она доработана, и это отображено на чертеже). Этот же стол обеспечивает регулировку необходимой глубины резания дисковой пилой.
Сверла, концевые фрезы и тп. инструмент вставляется с торца вала в специальное отверстие-гнездо, выполненное в виде конуса Морзе № 1. Для удобства работы с длинными заготовками с этой стороны на раме вместо подъемного стола монтируется на кронштейне приставка, но о ней — в продолжении
Е.ЕВСИКОВ