Как сделать самодельный разборный мангал
Слесарное дело /30-апр,2024,19;50 /
607

Идея создания собственного разборного мангала вдохновляет на уникальный проект, который будет легким, компактным и надежным. Этот тип мангала идеально подходит для природных вылазок и походов, так как легко собирается и разбирается многократно. Конструкция основывается на использовании болтов, шарниров и гаек, что обеспечивает прочное соединение его элементов. Благодаря этому его можно легко транспортировать в собранном виде на любые расстояния. Как пример, посмотрите насколько удобны и универсальны разборные мангалы KOLUNDROV
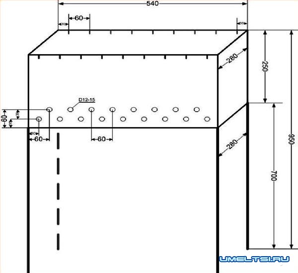
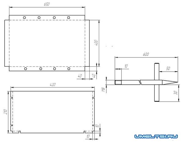
Перед тем как начать изготовление мангала, необходимо выполнить подготовительные работы, включающие создание чертежа. Он поможет определить расположение конструктивных элементов. Затем с помощью рулетки на листовую сталь толщиной 2-4 мм наносится разметка для вырезки таких деталей, как задняя и передняя стенки, дно и боковые части.

Для изготовления мангала потребуется также металлический уголок 25х25 мм, который будет использоваться для ножек и каркаса, а также стандартный набор инструментов, включающий ручную пилу по металлу, молоток, дрель и угловую шлифмашину.
Основные этапы изготовления включают в себя вырезку листа по разметке, сборку коробки из боковых стенок и фиксацию их при помощи болгарки или пилы. Затем на боковых частях и заготовках для ножек делаются пазы для более прочного соединения. Стенки вставляются в пазы основания и фиксируются. Для удобства использования на больших боковых частях выполняются отверстия под шампуры, а на коротких – привариваются ручки.
Все детали затем собираются в одну конструкцию с использованием гаек и болтов. Такой мангал станет не только функциональным, но и неповторимым элементом вашего отдыха на природе.
Различные конструкции мангалов имеют свои преимущества и недостатки, поэтому оценку следует делать исходя из конкретных обстоятельств. Рассматривая самодельный разборный мангал, можно выделить несколько позитивных аспектов. Прежде всего, это его невысокий вес, что делает его легким для переноски.
Компактность также является ключевым преимуществом, позволяя с легкостью упаковать мангал для транспортировки и хранения. Удобство использования и переноски делает его идеальным компаньоном для вылазок на природу и походов.
Простота конструкции облегчает изготовление и сборку мангала, а также позволяет легко вносить изменения или модификации. Небольшие затраты на изготовление делают самодельный разборный мангал доступным для широкого круга людей.
Однако среди недостатков можно выделить тонкостенность и недолговечность конструкции. Эти факторы могут сказаться на долговечности мангала и его способности выдерживать интенсивное использование.
Таким образом, самодельный разборный мангал обладает рядом преимуществ, делающих его привлекательным выбором для любителей природы и пикников, однако необходимо учитывать и его недостатки при принятии решения.
Примеры разборных мангалов





По материалам сайта https://kolundrov.ru/