Прицеп-тележка для мотоблока: размеры, чертежи
Слесарное дело /31-июл,2022,13;21 /
11881

Как и у многих огородников, у меня на участке используется мотоблок. Он не простаивает, но в основном трудится на картофельном наделе: и пашет, и окучивает. Вот я и решил сделать ему в напарники грузовую тележку-прицеп, чтобы выращенный картофель можно было перевозить. Причем в довольно больших количествах: тележка вмещает шесть мешков картофеля, плюс вес водителя - итого около 400 килограммов получается. Отсюда конструктивные особенности прицепа: прочное водило, мощная рама, вместительный кузов, надежные колеса. В такой последовательности и рассмотрим перечисленные узлы и агрегаты.
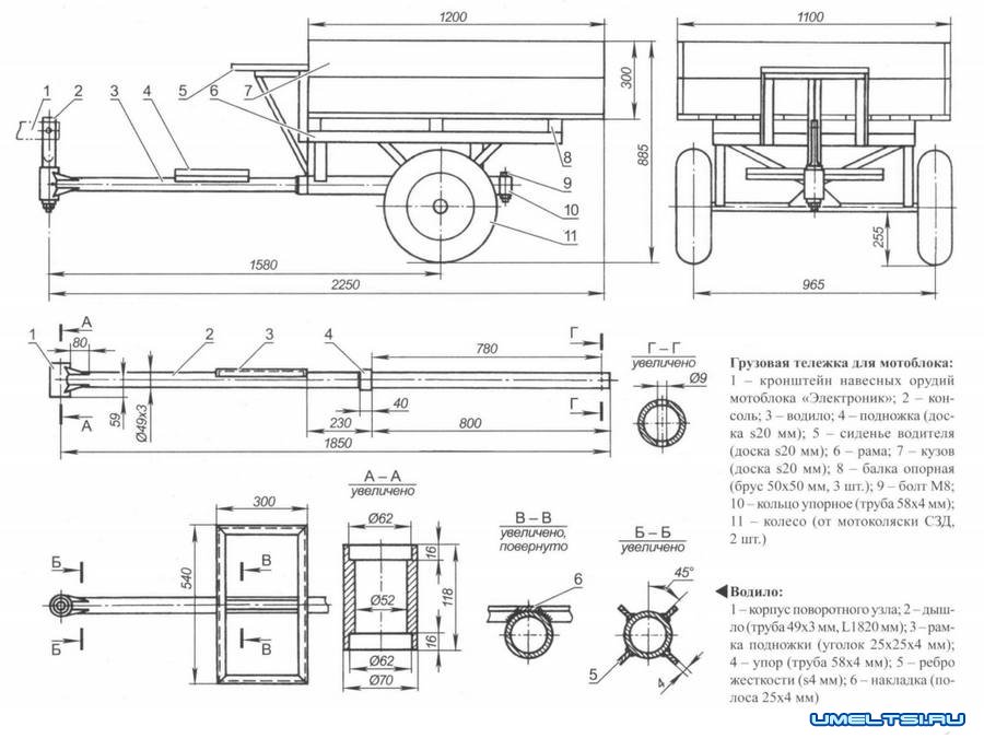
Водило состоит всего из нескольких деталей, соединенных электросваркой. Наиболее нагруженное здесь место - стык корпуса поворотного узла и дышла, поэтому оно усилено четырьмя ребрами жесткости.
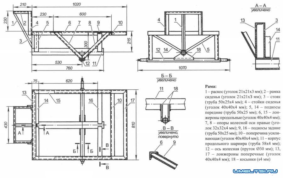
Рама изготовлена из набора стальных элементов: уголков, прутка, труб круглого и прямоугольного сечения. Они сварены в конструкцию, некоторая замысловатость которой обусловлена работой тележки на местности, изобилующей неровностями рельефа, россыпью камней и валунов, эксплуатационные нагрузки здесь очень велики.
В качестве колесной оси применен стальной стержень 030 мм, соединенный уголковыми опорами и косынками с лонжеронами и корпусом продольного шарнира при помощи электросварки. Длина стержня выбрана такой, чтобы колеса не выступали за обводы кузова.
Под стать мощной раме и крепкий кузов, сколоченный из досок 20-мм толщины и усиленный на углах металлическими накладками. К раме он крепится посредством болтов и трех мощных опорных балок из бруса 50x50 мм. Нагружается кузов, как и любые одноосевые тележки -центр тяжести груза должен располагаться ближе к переднему борту и не заходить за ось вращения колес. Поскольку тележка предназначена в основном для перевозки мешков с картофелем, кузов сделан с неоткидывающимися бортами. Для перемещения же сыпучих грузов тележка у меня используется редко.
Колеса позаимствованы у давнего популярного объекта всех самодельщиков - мотоколяски СЗД (использованы передние, со ступицами в сборе). При этом концы стержня - колесной оси обточены под посадочные диаметры штатных подшипников ступиц. Практика эксплуатации тележки показала, что эти колеса самые подходящие.
С мотоблоком тележка соединяется с помощью консоли, верхняя часть которой повторяет обводы держака окучника, поскольку вставляется в штатный кронштейн навесных орудий. А нижняя представляет собой ось, вокруг которой в двух радиально-упорных подшипниках вращается поворотный узел водила. Пространство между подшипниками заполнено консистентной смазкой и прикрыто пыльниками.

С рамой тележки водило соединено шарнирно - дышло вставлено в трубчатый корпус продольного шарнира, на конец его надето и зафиксировано болтом М8 упорное кольцо. Такое соединение позволяет колесам тележки быть независимыми от положения колес мотоблока на неровностях дороги.
Водитель управляет связкой мотоблок-тележка, располагаясь на деревянном сиденье впереди кузова. Руками он держится за рычаги управления, а ногами опирается на деревянную подножку, прикрепленную к специальной рамке на дышле водила.
В небольшой публикации, конечно, сложно показать все мелкие подробности конструкции. На рисунках, например, не изображены такие детали, как бортовые петли с лямками для крепления перевозимого груза, или мягкая подушка на сиденье, без которой любая поездка была бы для водителя испытанием. Думаю, что с этими и другими элементами любой самодеятельный конструктор справится самостоятельно - тут нет ничего сложного.
Владимир СВЕРБИЛЬ.