Сдвижные ворота своими руками
Слесарное дело /01-фев,2014,13;12 /
41743

Как то раз ко мне приехал давний товарищ с просьбой о помощи - нужно было сделать и поставить сдвижные ворота с шестиметровым пролётом и интегрированной калиткой. В тех местах где мы живем подобных разработок не продавали, а заказать, таких мастеров мы не найшли. Пришлось делать своими руками, что получилось читаем далее.
Отложив все свои дела, я поехал с Игорем для разведки и привязки на местности уже созревшей в голове конструкции. Промерили шагами и рулеткой территорию, обсудили пожелания заказчиков. Оставалось подобрать основные материалы и назначить день начала работ.
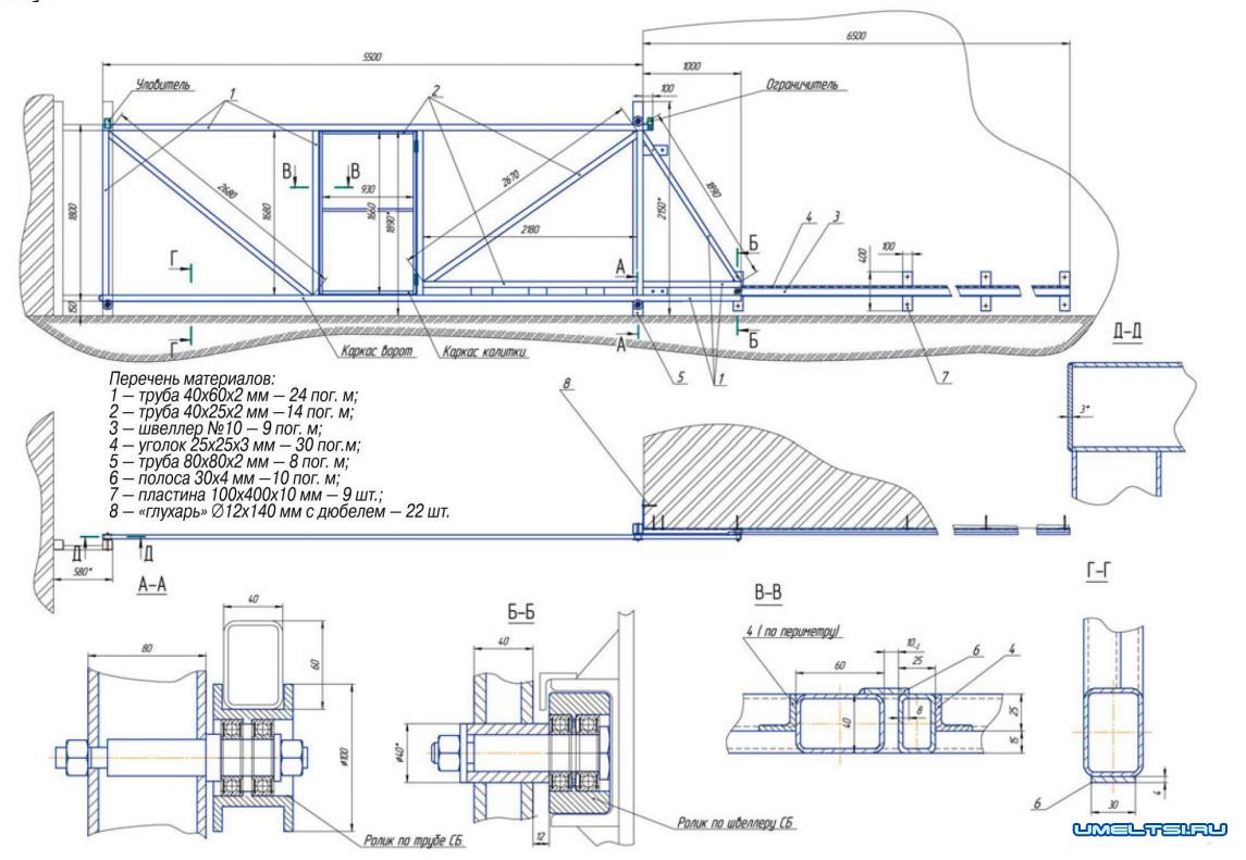
Конструкция сдвижных ворот имеет четыре основных узла:
• каркас-ферму высотой 1800 и длиной 6500 мм с направляющим роликом и концевым упором;
• направляющий швеллер длиной 6500 мм со стопором и упором;
• правый (если смотреть на ворота со стороны двора) опорный столб из квадратной трубы 80x80x2500 мм с установленными на нём опорным и направляющим роликами;
• левый опорный столб с такими же размерами, но с приёмным роликом и запорным шпингалетом.
Каркас сдвижной створки ворот сварен из квадратных труб 40x60x2 мм и 25x40x2 мм с установленной для крепления металлопрофиля окантовкой из уголков 25x25x4 мм. Укрепляющих косынок нет, но введена дополнительная продольная вставка от рамы калитки до конца консоли, что увеличило прочность и жёсткость этого конструктивного узла. В нижнем углу консоли вваривается втулка крепления оси ролика, перемещающегося по швеллеру при движении ворот.
Этот ролик состоит из корпуса, оси, шайбы распорной, двух подшипников №80205 и шайбы с гайкой М14.
Каждый из роликов, по которым катится нижняя опорная труба, и тех, которые направляют движение верхней трубы рамы ворот, имеет корпус, ось, шайбу, два подшипника N980205 и гайку М14.
Потребовалось пять дней, чтобы сделать чертежи, которые отдали токарю для изготовления требуемых деталей, закупить материалы и некоторые комплектующие. Пришлось также очистить площадку на месте установки ворот.
В первый день мы приступили к сварке каркаса ворот и подготовили ямы для опорных столбов, а во второй доработали каркас и установили к углу кирпичной веранды один из опорных столбов. Мы даже успели в нём просверлить отверстия для осей роликов на высоте 150 мм от земли и вверху, с учётом высоты полотна ворот 1800 мм.
На следующий день в кирпичной стене насверлили глухих отверстий и болтами М12x140 мм на дюбелях закрепили пластины, на которые будет приварен направляющий швеллер. К швеллеру сваркой прикрепили отбойный уголок 25x25 и произвели первый прокат каркаса ворот на роликах. Всё получилось удачно.
В последующие дни, работая вечерами, мы изготовили и поставили на предназначенные им места упоры конечных положений ворот, левый опорный столб с нижним роликом, каркас калитки с навесами, шпингалеты, замок в калитку.
В завершение всех работ всю конструкцию покрасили и обшили ворота металлопрофилем S8, который прикрепили отрывными заклёпками.
Вот бы ещё установить электропривод и применить дистанционный пульт управления...
Сборочный чертёж сдвижных ворот
Анатолий МАТВЕЙЧУК, г. Заводоуковск