Самодельный лифт из электро лебёдки
Полезные приспособления /20-апр,2022,04;31 /
11965

Магазин бытовой химии знакомого переехал на второй этаж арендуемого помещения. Возникла проблема с доставкой товара. Потребовалась механизация. Приятель попросил помочь решить проблему, так родилась идея изготовления грузового лифта вдоль лестницы. Подобную конструкцию можно смастерить для подвала, высокого крыльца или использовать при строительстве хозпостроек на участке.
Понадобилось: металлический уголок 30x30 мм, профильная труба сечением 20x40 мм, армировочная сетка, колеса лебедка на 500 кг.

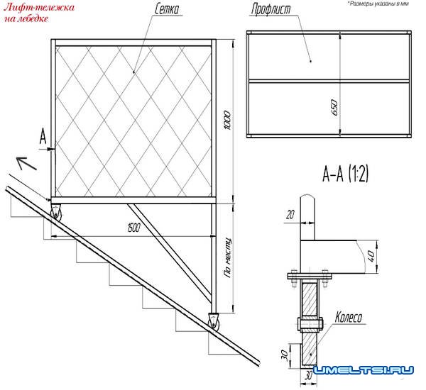
Поэтапное изготовление лифта
Начертил эскиз лифта (см. чертеж) и по нему сварил из трубы 20x40 мм каркас размером 1500x600x1000 мм (длина, ширина, высота). Стенки заварил арматурной сеткой. При этом переднюю стенку оснастил съемной сетчатой дверцей на крючках, то есть сетку не приваривал (фото 1).

На дно закрепил заклепками профилированный оцинкованный лист (фото 2). Приготовил пластины крепления колес и по четыре болтика с гайками Мб.
По месту приварил задние ножки, согласно углу подъема лестничного марша. Укрепил их укосинами, установил колеса (фото 3, 4) Разложил уголок, как рельсы — по ширине колес, и приварил к ступеням лестницы.

Лебедку закрепил анкерами на кирпичной стене, прикрыв ее метал лическим козырьком (фото 5). Зацепили крюк электролебедки за петлю на тележке (фото 6).
Лифт испытали своим общим с приятелем весом в 180 кг плюс вес самой конструкции в 50 кг. Поднимает отлично.
Опускаем лифт вниз, загружаем и поднимаем наверх. Очень удобно, а главное, быстро.

Анатолий Матвейчук, г. Заводоуковск.
Фото автора
Фото автора
Лестница с подъемником
Во время ремонта кровли потребовалось
поднимать много строительных материалов. Выполнять это вручную, лазая по лестнице, не только тяжело, но еще и неудобно. Поэтому оснастил лестницу простой платформой-подъемником.По ширине своей лестницы смастерил из бруса сечением 80х 40 мм Г-образную платформу. Установил на нее на резьбовых шпильках (они же оси) колеса от садовой тележки. Чтобы платформа не соскочила с лестницы, к колесам прикрутил накладки из фанеры чуть большего диаметра (гайками прикрутил к шпилькам-осям). Все готово.Чтобы поднять и опустить платформу с грузом по лестнице, использую веревку, которую привязал к балке платформы через винт-кольцо. Также платформу можно поднимать с помощью небольшой лебедки с электроприводом (если есть в наличии), закрепив ее на верхней перекладине лестницы.