Отвал для уборки снега на автомобиль своими руками
Полезные приспособления /09-апр,2019,09;58 /
12721

Есть у меня пикап. Машина эта, прежде всего - утилитарная, а значит, она должна именно работать, а не просто служить банальным средством передвижения от дома до работы и обратно, по магазинам и т.д. В «джиперы» я пока не записался и грязь по лесам да полям не мешу. Да и на рыбалку тоже не езжу. На вопрос, чем же практическим занять свою «Мазду», помог ответить обильный снегопад, случившийся как-то этой зимой. Впрочем, поначалу я тот снег как-то и не заметил - полный привод все-таки, клиренс соответствующий и т.п. Но когда легковушка жены лишилась возможности перемещаться по участку, понял, что пора приступать к «спасательным работам». Однако, выйдя в выходной с утра на крыльцо и оценив масштабы этих работ, не на шутку расстроился - это ж надо целый день махать лопатой! И тут меня посетила мысль: а не оборудовать ли отвалом для уборки снега пикап?
Идея была туманной и поначалу не очень перспективной -не понятно было, из чего и как делать. Начал осматривать свои владения и потихоньку собирать всякий хлам, который, по моему разумению, сгодился бы в дело. Потихоньку и конструкция стала вырисовываться в голове. Оставалось только, следуя принципу - «главное ввязаться в бой, а там посмотрим», взяться за инструменты...
К обеду первый вариант отвала был установлен на машину. Потребовалось, конечно, еще несколько часов на его доработки, но к вечеру (уже под покровом темноты, ведь не терпелось же попробовать, что получилось!) я начал долгожданную «зачистку» территории. И результат превзошел все ожидания! Думаю, соорудить подобного помощника по хозяйству под силу каждому, обладающему элементарными навыками по работе с металлом.
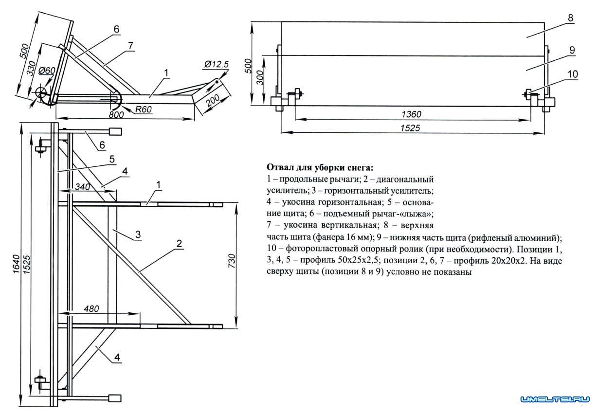
Итак, первое, что мне попалось на глаза, - листы фанеры толщиной 16 мм, оставшиеся от опалубки при заливке фундамента под дом. Они пойдут на изготовление собственно щита отвала. Но снизу надо что-нибудь более солидное, нежели фанера. Тут удачно выудил из гаража две длинные полосы рифленого алюминия, шириной по 20 см каждая - не смог пройти мимо в свое время, приобрел, да так и валялись без дела. Осталось этот сборный щит закрепить на каркасе, который я сварил из стальных профилей 50x20x2,5 мм и 20x20x2 мм, также очень кстати обнаруженных в хозяйстве.
Конструкция изделия понятна из приводимого чертежа. Алюминий и фанера крепятся на саморезах. Как видите, тут и вправду все очень примитивно: я не стал мудрить с загибающимся кверху щитом, как на профессиональной снегоуборочной технике. Вправо-влево по курсу отвал тоже не поворачива
ется - он всегда ориентирован перпендикулярно направлению движения машины.

Зачастую создатели подобного оборудования для автомобиля озадачиваются вопросом подъема-опускания отвала. И, кажется, что без этого не обойтись. Популярное решение заключается в использовании электрической лебедки, но я, как уже заметил выше, далек от оффроуда, а потому лебедкой не обзавелся. Покупать же ее только ради уборки снега, разумеется, и в мыслях не было. Поэтому, чтобы отвал поднимался при движении назад, я придумал специальные рычаги по бокам. Когда машина работает в режиме «бульдозера», двигаясь вперед и сгребая снег, то они свободно волочатся, подпрыгивают позади отвала. Но при заднем ходе начинают «сопротивляться», норовя встать вертикально и, упираясь нижней частью в поперечину рамы, автоматически приподнимают отвал над землей примерно на 100 мм. При этом изогнутые пластины снизу выполняют роль своеобразных лыж, на которых вся конструкция скользит по снегу, и заметного сопротивления движению не возникает. Впрочем, иллюзий на счет авторства своего изобретения я не испытываю: подобные конструкции известны.

Отвал крепится к стандартным буксирным проушинам на раме пикапа двумя болтами М12 с гайками. Полагаю, обычные метизы, продающиеся ныне на каждом углу, для этой цели не подойдут - тут нужен действительно крепкий, качественный крепеж. Я использовал автомобильные болты от подвески, с мелкой резьбой, рассчитанные на высокие нагрузки.
На следующий день испытания продолжились. Прицепил устройство к автомобилю, поехал и... встал. Оказалось, что отвал, упираясь в снег, особенно когда на пути есть какое-то невысокое препятствие (смерзшийся бугор льда, например), стремится приподнять передок «толкача». Передние колеса теряют сцепление, и даже полноприводная машина не едет. Выход нашелся простой - удлинить продольные рычаги, чтобы угол между ними и землей стал меньше. Причем я их не столько удлинил, сколько сделал излом ближе к месту стыковки с автомобилем. А чтобы рычаги не согнулись в критических точках, вварил усилители, показанные на чертеже. Теперь все встало на свои места.

Внимательный читатель не может не заметить деталей, совсем не характерных для отвала, а точнее - странных колесиков перед щитом. На фотографиях видно, что они есть и по бокам. Сразу оговорюсь, что это специфическая особенность конкретной конструкции, необходимая именно мне, поскольку при выгребании снега через проем ворот за пределы участка мне приходится преодолевать швеллер, служащий фиксатором ворот и возвышающийся над землей примерно на 60 мм. Вот отвал и перескакивает через него на колесиках. Впрочем, две пары колесиков - это перебор. Как оказалось, достаточно и одной - просто лень снимать лишние. Если же препятствий на путях уборки снега не предвидится, то подобные опоры смело можете не принимать в расчет. Лучше пустить по нижней кромке отвала уплотнитель, как это делается на всех профессиональных образцах данного оборудования. Идеально подойдет полоса, вырезанная из списанной транспортерной ленты.

Навеска отвала на машину занимает от силы минуту. Столько же времени требуется на его демонтаж. Теперь расчистить площадку перед домом от снега можно быстро и довольно качественно. Иногда даже соседи просят меня помочь избавиться им от сугробов. А что, мне не трудно, ведь теперь занятие, наводившее ранее тоску, приносит удовольствие!
Сергей АМАЛЬСКИЙ, г. Санкт-Петербург.