Мини экскаватор своими руками
Полезные приспособления /12-мар,2018,22;27 /
454614

Своими пытливыми умами и беспокойными руками народные умельцы постоянно призывают других людей сооружать своими силами разного рода технику, полезную в хозяйстве. Мастера не обошли вниманием и мини-экскаваторы – эти самодельные машины популярны и за границей, и у нас.

Самодельные землеройные машины делают по двум основным вариантам конструкции. Первая версия – схема навесной экскаваторной установки на мини-трактор, и вторая – схема автономного мини-экскаватора. Во втором случае экскаватор может быть и самоходным, и прицепным – когда требуется дополнительный транспорт, чтобы доставлять эту машину на место проведения работ.

Самым простым и дешевым вариантом является модель мини-экскаватора на основании прицепа. Его конструкция включает несущую раму с колесной парой, с установленным автономным двигателем внутреннего сгорания, гидроприводом и специфическим оборудованием.
Работа с чертежами
Когда у нас уже есть чертежи определенных конструкций, приступаем к составлению сметы. Из нее можно увидеть, насколько много нужно выделить средств, чтобы купить расходные материалы и запчасти для самостоятельного изготовления мини-экскаватора.


Конструктивные особенности мини-экскаватора
Неплохое решение – это установка самодельного экскаватора на Т40 или изготовление своими руками из узлов прицепа, с последующей установкой на него двигателя, бака, колесной оси от старого автомобиля. Чтобы обеспечить устойчивость во время работы рекомендуется использовать дополнительные крепления. Два опорных «башмака» не позволят экскаватору опрокинуться – размещенный на шасси от автомобиля, он будет надежно стоять при выполнении работ. При подборе мотора во многих случаях используют различные варианты компактных японских или более дешевых китайских двигателей внутреннего сгорания с мощностью до 15 кВт.


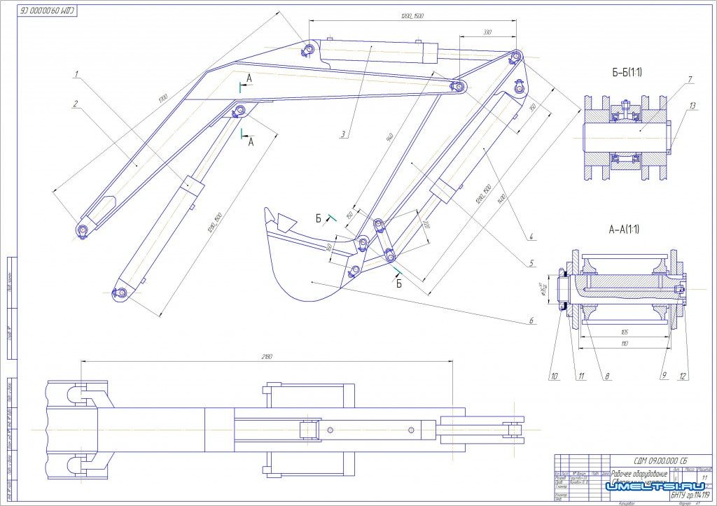
Конструкция построена на таких основных элементах:
• несущей раме с гусеницами или в виде экскаватора на автомобильном ходу;
• опорно-поворотной системе;
• гидравлической системе – с насосом, масляным фильтром, баком, ручным рычагом управления, гидроцилиндрами, шлангами;
• двухсекционной стрелой с ковшом.

Гидравлическая система
В заводскую гидравлическую систему входят 4 элемента в виде опорно-поворотной платформы, подъемной стрелы, рычагов управления, ковша. Чтобы получить более простую конструкцию, используются только необходимые части: стрела и опорно-поворотная колонка, которая надежно прикреплена на несущую раму. Любой мини-трактор может служить рамой. Чтобы самостоятельно изготовить узлы, нужно взять 4 гидроцилиндра. Они дадут возможность стреле подниматься и опускаться, делать повороты и управлять ковшом. Это можно делать при помощи гидроцилиндров, которые поднимают кабины грузовых машин советских марок.

Не стоит тратить время на самостоятельное изготовление цилиндров, так как это сделать практически нереально. Лучше заглянуть в гаражи, на автобазы, и вы точно сможете найти подходящие детали.
Гидравлический привод
Вопрос выбора гидравлического привода упирается только в финансовые возможности мастера, который взялся за сборку мини-экскаватора. Обычно используется шестеренчатый насос, так как он стоит существенно дешевле, чем аксиально-приводной узел. В то же время он имеет простую конструкцию, за счет чего любую неисправность можно легко устранить. Самодельные мини-экскаваторы изготовляются во многих случаях с шестеренчатыми насосами НШ-10 и распределительный узел Р-16А. Для увеличения мощности самодельного прицепного экскаватора часто прибегают к установке сразу двух насосов и распределителей.


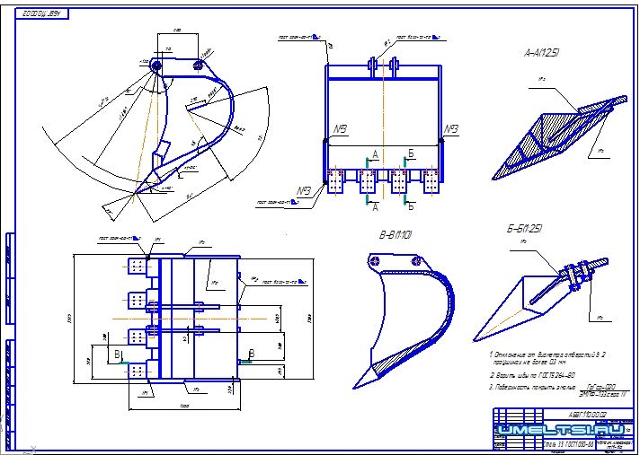
Как изготовить ковш
Ковш является главной рабочей частью мини-экскаватора, на него приходится максимальная нагрузка. Следовательно, он должен быть изготовлен из материала высокого качества. В оптимальном варианте для ковша используется листовая сталь, толщина которой составляет 6–8 мм.
Важно уделить должное внимание сварке заготовок, предварительно рассчитанных и вырезанных согласно чертежам. В то же время для усиления днища и боковых стенок ковша применяются стальные пластины.
Для большей функциональности мини-экскаватора стоит на передней части ковша с помощью сварки расположить высокопрочные «клыки» – для этого отлично подойдут «пальцы» гусеничного трактора.

Заключение
Чтобы получить наиболее эффективную модель мини-экскаватора, нужно как следует спланировать весь рабочий процесс, оценить возможности самостоятельного изготовления и покупки готовых частей. В этом случае нужно владеть определенными навыками проведения сварочных, слесарных, токарных, и других работ.