Собираем стапель для кузовного ремонта
Полезные приспособления /29-июн,2017,01;39 /
21098

Какие бы золотые руки у вас не были, но чтобы рихтовать кузов одних рук будет мало, здесь нужны специальные приспособления. Для того чтобы хорошо восстановить кузов после ДТП не обойтись без стапеля.
Его функция – прочно фиксировать автомобиль в процессе сжатия или растягивания кузова. Стапеля по своей конструкции бывают разные, но их можно объединить на три вида: рамные (в виде железной рамы), платформенные (для работы посложнее) и напольные (эти уже многофункциональные, передвижные, профессиональные).
Кому действительно нужен стапель, а купить его нет возможности предлагаю сделать стапель для кузовного ремонта своими руками а в этом я вам помогу.
Перед тем как начать делать стапель я хорошо прозондировал почву, перечитал много статей и пересмотрел не одно видео, чертежи в интернете.
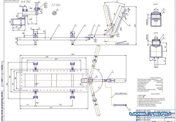
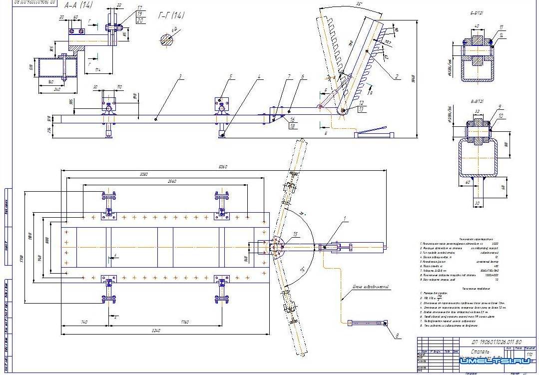
Мы сделаем рихтовочную раму по принципу работы автомобиля. Рама под авто в форме прямоугольника, к коробам со всех четырех сторон крепятся крепления, они будут выходить на задней части подъёмной платформы, благодаря этому она будет мобильной.
Первым делом измеряем длину от переднего колеса до задней части. По ширине рама должна проходить между колесами. При помощи сварочного аппарата привариваем две металлические трехметровые палки и две палки по 800 мм. Чтобы избежать перекосов, разложим все на ровной поверхности.

Для того чтобы рама получилась ровной, без перекосов, все стороны перепроверяем при помощи уровня. Каркас также должен быть ровным, его проверяем при помощи рулетки, измеряя по диагонали от одного угла к другому накрест, размер должен совпасть.
Аккуратненько чтобы не было бугров на стыке, в форме прямоугольника свариваем каркас.

К каждому углу приварим косынки диаметр которых 7мм.

Приварим лапы. Для этого нам понадобятся заготовки: 4 металлических трубы по 550мм и 4 металлических полоски по 10мм.

Когда все детали будут готовы приварим их.

Лапу нужно варить так чтобы она была вставной, поэтому варим ее с полосами по обе стороны. Саму же лапу к каркасу не привариваем. К основе плотно приварим уголки из прочного металла, с другой стороны их приварим к лапе, так лапа не будет сдвигается в бока. Таким же образом привариваем оставшиеся три лапы. Далее перейдем к сверлильному станку.

Для стяжного механизма нужно сделать отверстия. Делаем колонки диаметром 30мм, шириной 150мм соответственно чертежам и зажимаем их под короб.

Болты такой конструкции должны выдерживать 10 тонн.

Соответственно схеме собираем базовую плату.

Заготовки базовых и средней плит готовы, теперь переходим к сверлению, также соответственно данной схеме. При сверлении не забывайте поливать сверло водой, чтобы оно не перегрелось и не затупилось.
Когда закончим сверлить заготовки, займемся нанесением рубцов и вырезанием канавок как на чертеже.

Все готовые заготовки собираем в единое целое и свариваем друг с другом. Вот что получается.

Делаем идентично все четыре стороны. На прямоугольною основу монтируем лапы. Затем ставим наш самодельный стапель под машину при помощи домкрата поднимаем ее и подгоняем лапы под пороги авто, Далее медленно опускаем авто на зажимы - затягиваем. И так остальные три стороны.
Убираем домкраты, и машина стоит на стапеле, сделанном своими руками.

С тыльной стороны монтируем рычаг.

Установить рычаг можно под любым углом. Сверлим отверстия для крепления рычага.
Для зажима на натяжитель использовали швеллер.

Тянущий элемент находится в разных углах, чтобы ввинтить болт мы перепроверим отверстия на плитах и в трубе.

Самодельный стапель готов. Его размеры: длина-650мм, ширина 510 мм, длина тянущего элемента 900мм, высота 200см.