Самодельный мотоблок своими руками в домашних условиях
Полезные приспособления /17-янв,2017,00;27 /
12837

Несколько лет назад наша семья приобрела дачный участок, который долгое время не обрабатывался. Попытка перекопать его вручную не увенчалась успехом и мы вынуждены были нанять людей, которые мотоблоком вспахали наш участок. За это заплатили приличную сумму. И тогда я задумался о том, что в дальнейшем было бы неплохо иметь собственный мотоблок - ведь он может помогать весь сезон.
Пройдя по магазинам силовой техники, я понял, что приобрести мотопомощника и навесное оборудование к нему для меня будет не по средствам. А так как я с детства интересовался техникой, то решил попробовать сделать мотоблок самостоятельно.
На создание мотоблока ушло около полугода, и весной он был готов к испытаниям.
Самодельный мотоблок из двигателя мотоцикла "Минск"
Отдельно отмечу, что в конструкцию пришлось внести изменения, так как не удалось найти мотор с собственным принудительным воздушным охлаждением и на мотоблок поначалу установил двигатель от мотоцикла «Минск». Для обдува цилиндра смонтировал электровентилятор от «печки» автомобиля «Москвич» и из алюминиевого листа выколотил кожух.


Также изготовил фрезы собственной конструкции, ширина захвата которых составила около 1 м. Но испытания показали, что диаметр фрез маловат и мотоблок буксует на месте, так как садится на редуктор, да и мотор был не новый и потому часто выходил из строя.
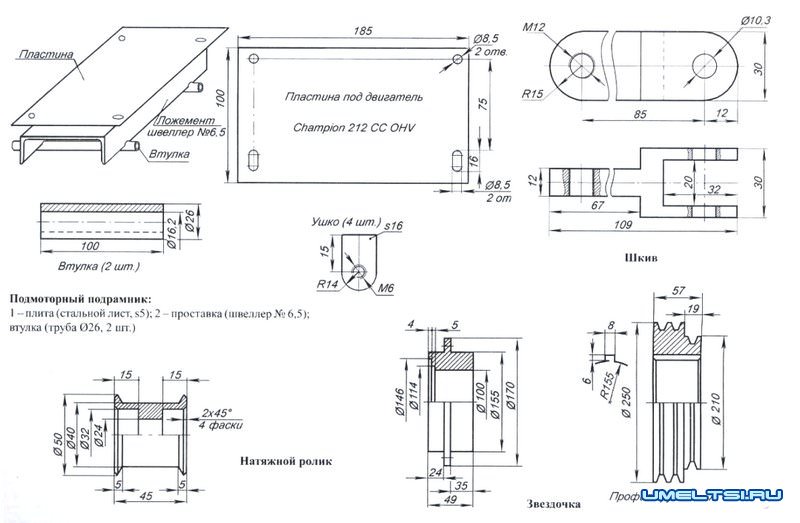
К следующему сезону мотоблок решил переделать. Фрезы доработал: с помощью специальных проставок (дополнительных фланцев) увеличил их диаметр. Приобрел новый одноцилиндровый четырехтактный двигатель «Чемпион» (Champion) 212 CC ОНѴ мощностью 7 л.с. китайского производства. Вместо звездочек были выточены двухручьевые шкивы, приобретен клиновой ремень, из пары талрепов смонтировано натяжное устройство. Также изготовил новый подмоторный подрамник с площадкой для крепления двигателя.

Когда все было собрано и нужно было перегнать мотоблок из мастерской в огород, произошло неожиданное... его мотор не только не смог вращать фрезы, он и себя-то тащить не был способен даже на колесах по асфальту - мотор просто глох при попытке тронуться. Я обратился в магазин, в котором приобрел двигатель. Там мне сказали, что мотор исправен, а вот мощности, скорее всего, не хватает и посоветовали приобрести к двигателю редуктор, но его цена была под стать стоимости самого мотора.
Покупать редуктор я не стал, а проблему помог решить друг, который посоветовап изготовить дополнительный шкив. Шкив установил через кронштейн на раму, а натяжение ремня осуществил с помощью двух талрепов, которые приобреп на строительной базе. Этот шкив соединен со шкивом выходного вала моторамы клиновым ремнем профиля «А» длиной 800 мм, а с основным редуктором - ремнем профиля «А» длиной 1700 мм. Только этого было недостаточно. Но так как увеличить шкив мешала рама, пришлось заменить ходовую цепную передачу с другим передаточным числом: с числом зубьев z =14 и z =44 и шагом t =19 мм. И все заработало. Еще я немного укоротил ручки и изготовил новый кронштейн для «тормоза» (он сделан из прутка диаметром 30 мм), что немного облегчило конструкцию и улучшило управление.
В целом мотоблок получился довольно хорошим, а после покраски вообще выглядит как покупной. Уже несколько лет он помогает не только мне, но и многим моим друзьям и родственникам обрабатывать свои участки. Мотоблок достаточно экономичен и имеет две передачи вперед, которые «переключаются» перестановкой ремня по ручьям шкива на ведущем валу клиноременной передачи.
Справедливости ради, надо отметить и недостатки изготовленной мною конструкции. Всю раму можно сделать из металла толщиной 3 мм -это позволит снизить массу всей конструкции и облегчит управление. И еще мотоблоку очень не хватает задней передачи, так как вытащить закопавшиеся фрезы бывает проблематично.

А. РЕПИН, г. М ц е н с к, Орловская обл.