Домашняя электрокоптильня своими руками: пошаговое изготовление
Полезные приспособления /14-янв,2017,11;41 /
14126

История создания коптильни с электронагревателем (электродымарем) такова.
Мой давний приятель Александр родился и вырос в деревне. С кровью предков передалось ему неуемное желание держать на подворье многообразие домашних животных. Так, кроме основной работы, он содержал коня с жеребенком, коров с телятами, свиней с поросятами, кроликов, а также различную птицу и еще кое-что по мелочи. На небольшом приусадебном участке вся живность обитала буквально в два этажа.
Этот опус лишь к слову. Следующими задачами фермера-любителя были переработка и сохранение выращенных продуктов животноводства и даже реализация излишков. Остановлюсь лишь на одном из направлений переработки - домашнем копчении.
Копчение мяса и сала, как известно, делает продукты не только более вкусными, но и способствует их длительному хранению даже без холодильников и морозильников.
Сначала он использовал традиционный метод холодного копчения: приямок с костерком для получения дыма; длинная дымовая труба, проложенная по земле; коптильный деревянный шкаф. Навешает хорошо просоленных заготовок, с утра растопит костерок, заложит сырыми чурками и уйдет на работу. В обеденный перерыв - подбросит еще чурок, вечером - добавит, ночью проследит...
Но однажды в сухую ветреную погоду от этой коптильни случился пожар, и сгорела часть двора с банькой! Убыток и пожароопасность костров натолкнула приятеля на мысль избавиться от открытого огня при копчении.
Для проверки идеи соединил он последовательно два воздушных электрических ТЭНа, положил их на корытце из оцинковки и установил на кирпичах под коптильным шкафом. Затем поверх ТЭНов наложил сырых яблоневых чурочек и включил агрегат в розетку бытовой электрической сети на 220 В. Эксперимент удался - ТЭНы нагрелись, деревяшки задымились, коптильня заработала.
Как сделать коптильню своими руками
Вспомнил и я про такой удобный и безопасный способ копчения через полтора десятка лет и решил сделать себе подобную «дворовую» коптильню. Взяв за основу приятельскую идею - реализовал ее по-своему.

Для корпуса коптильни почти идеально подошел шкаф от старого электрощита габаритами 1200x600x250 мм. Есть в нем и дверка, и продувные отверстия, и вентиляция под верхней крышкой.
Доработка выразилась в устройстве щеколды под навесной замок, опорных ножек и двух пар отверстий под арматурные прутки для подвески крючков.
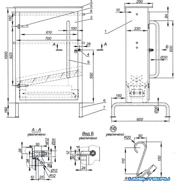
Чертеж коптильного шкафа

Коптильня
1 - корпус (ящик от электрошкафа); 2 - дверь; З - крышка; 4 - запор; 5 - шарнирная петля (2 шт.); 6 - ножка (2 шт.): 7 - опорная пластина-подпятник (4 шт.); 8 - пруток для навески крючков (арматурный стержень, 2 шт.); 9 - ручка двери; 10 - крючок для навески продуктов ⌀ 6 (компл.)
Готовый шкаф установил на постоянное место в углу двора.
Электронагреватель для коптильни своими руками
Нагревательные элементы - оребренные воздушные ТЭНы заключил в специальный переносной корпус на ножках, с корытом для ароматных чурок и длинным электрокабелем. Такой съемный нагреватель удобнее обслуживать и хранить между копчениями в сухом месте, на полке в гараже, оставляя сам шкаф под открытым небом.

Электронагреватель:
1 - корпус-корыто (стальном лист si); 2 - ножка-щека (стальной лист s1, 2 шт.); 3 - защитный кожух (стальной лист s1, 2 шт.); 4 - оребренный воздушный ТЭН ( 1,5 кВт, 2 шт.); 5 - крепеж (болт М5 с гайкой и шайбой, 4 компл.); 6 - распорка (4 шт.); 7 перемычка (медь) 8 - крепление проводов (гайка М4. 4 компл.); 9 - медный радиатор; 10 - крепление кабеля (болт М4 с гайкой и шайбой, 2 компл.); 11 - диэлектрик крышки (ре шна) 12 кабель с вилкой.
Изготавливается нагреватель просто:
- из прямоугольной заготовки листового металла толщиной 1 мм загибается корыто (длина его должна соответствовать длине воздушных ТЭНов);
- из листового 1-мм металла вырезаются две щеки-ножки и привариваются к корыту;
- в щеках сверлятся две пары отверстий и устанавливаются ТЭНы;
- к ТЭНам крепятся медная перемычка для их последовательного соединения и кабель - через медные пластинки-радиаторы.
- изготавливаются защитные коробки «хвостиков ТЭНов» и прикрепляются винтами с гайками к щекам корпуса нагревателя.
Положительным свойством последовательно соединенных воздушных ТЭНов являются их оптимальный для тления сырого дерева нагрев, невозможность плотной обкладки тела ТЭНа и отличная конвекция. Мощность должна быть согласована с размерами коптильни и возможностями домашней электросети В моем случае наиболее подходящей была мощность из двух ТЭНов на 1,5 кВт.
Капельник для электрокоптильни
Третья часть конструкции - капельник, который препятствует падению растопленного жира на горячий нагреватель. Пропитанные жиром деревяшки тоже могут воспламениться.
Также наклонные ребра легко пропускают дым и даже перемешивают его.

Изготовление капельника не сложное:
- из прямоугольных заготовок выгибается три одинаковых лотка длиной чуть более ширины шкафа;
- из листовой стали толщиной 1 мм вырезаются четыре соединяющих ребра;
- сваркой все скрепляется крепкими точками таким образом, чтобы верхний лоток перекрыл кромки нижних лотков, а ребра этого «дымоперемешивателя» были наклонены в сторону слива жира.
Трудность понимания технического описания легко преодолеть, прочитав чертежи и просмотрев фото коптильни, капельника и нагревателя.

Как и в любом деле, после сборки агрегата наступает время испытаний. Повесив пару кусков просоленного сала на специальные мощные крючки, я наложил напиленных черемуховых колбушек и включил нагреватель в сеть! Примерно через 30 минут из всех щелей коптильного шкафа повалил дымок. «Процесс пошел» и был даже легко управляемым: мало дыма - подложи деревянных чурочек. много дыма... в копчении такого не бывает!
Вот будет лето, наловим большой и маленькой рыбки, засолим и закоптим.
А. МАТВЕЙЧУК.