Настенный столярный верстак с фрезером и тисками
Полезные приспособления /02-мар,2014,13;54 /
39329

Компактный верстачок, оснащённый столярными тисками и вертикально установленной фрезерной машинкой с направляющей линейкой, — прекрасный помощник домашнего мастера.
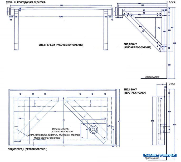
В его конструкции настенного верстака опорные кронштейны — поворотные, а верстачная доска — откидная, поэтому в сложенном положении верстак занимает очень мало места.
Рабочая поверхность верстака размерами 1300x600 мм позволяет обрабатывать большеразмерные детали, а рамная конструкция столешницы, обладая значительной прочностью и устойчивостью, хорошо выдерживает и ударные нагрузки. Конструкция верстака состоит из откидной столешницы (рамы с верстачной доской), поворотных опорных кронштейнов, прикреплённых на петлях к брускам рамы, и двух настенных брусков. К верхнему бруску прикреплена на петлях рама верстачной доски, нижний брусок является опорой для пяток кронштейнов. Конструкция и схема сборки верстака показаны на рис. 1.
Материалом для верстака может послужить древесина хвойных пород, например, сосны. Но кромочные доски следует изготовить обязательно из твёрдой древесины. Однако если вы соберёте верстак целиком из дубовых брусков, он будет более прочным и долговечным. Древесина должна быть сухой и выдержанной. Верстачную доску выкраивают из столярного (мебельного) щита или толстой фанеры.
Настенные бруски крепят с помощью дюбелей и шурупов. Определяя положение брусков на стене, используют строительный уровень. Способ крепления зависит от материала стены.
Начинают изготовление верстака с откидной столешницы. Выкраивают продольные и поперечные бруски, собирают их в раму, склеивая встык на шурупах-саморезах. Важно при этом обеспечить прямоугольность рамы. Верстачную доску крепят к раме также шурупами-саморезами, утапливая их головки в древесину. Отверстия с шурупами заглушают, вклеивая круглые шканты-пробки, выступающие части которых подрезают стамеской заподлицо с рабочей поверхностью. К внешним сторонам столешницы приклеивают и крепят гвоздями кромочные доски из твёрдой древесины (дуб, бук). На углах их стыкуют на ус. С внутренней стороны столешницы предусмотрены опорные бруски, к которым на петлях крепятся поперечины кронштейнов. На заднем поперечном бруске рамы размечают места под петли и делают соответствующие выборки. Готовую столешницу шлифуют и покрывают мебельным лаком.


Каждый кронштейн состоит из трёх деталей: стойки, подкоса и верхней поперечины. Детали выкраивают из брусков сечением 50x70 мм. Соединяют детали вполдерева на клее, фиксируя каждое соединение круглыми шкантами, которые вполне можно заменить шурупами-саморезами. Для крепления кронштейнов в каждую стойку врезают и привинчивают саморезами по две карточные петли.
Верстачные тиски располагаются в левой части столешницы. В зависимости от конструкции тисков для их установки может потребоваться выборка в переднем продольном бруске рамы (как в данном случае, под механизм тисков). Тиски, снабжённые передней и задней губками, позволяют надёжно крепить обрабатываемые детали.

В правой части верстачной доски размечают место основания фрезерной машинки. Форма и размеры выреза зависят от конкретной модели применяемого фрезера. Вырез по периметру имеет внутренний фальц, глубина которого равна толщине основания фрезера. Основание с закреплённым фрезером просто помещается в вырез с опорой на выступающий фальц. По окончании фрезерных работ и для складывания верстака основание с фрезером следует удалить и установить заглушку, толщина которой равна толщине основания фрезера.