Картофелеуборочный комбайн
Полезные приспособления /11-мар,2010,23;56 /
79430
Картофелеуборочный комбайн своими руками

Особенность схемы вот в чем. Двигаясь за мини-трактором по междурядьям, прицепной агрегат своим лопатообразным лемехом поднимает боровок (рядок картофеля) и высвобождает клубни. Они вместе с землей и остатками ботвы попадают на цепочно-прутковый транспортер элеватора. В других картофелекопалках клубни после транспортера направляются через проходной лоток в барабан-очиститель, на входе в который они постоянно скапливаются, задерживая уборку. В моей же нет барабана-очистителя — земля просыпается сквозь прутья еще на транспортере, жухлая ботва больших помех не создает, и очищенные клубни оказываются в бункере-накопителе.
Комбайн прост конструктивно — в нем много узлов и деталей от списанных сельхозагрегатов, прежде всего от промышленной картофелекопалки, а также технологически — для его изготовления в домашней мастерской достаточно иметь ножовку по металлу, электродрель и сварочный аппарат (токарных работ здесь — минимум).
Основу кинематики составляют три цепные и одна цепочно-прутковая передачи (с использованием роликовых цепей и звездочек от мопедов, велосипедов и сельхозтехники).
А теперь более подробно о каждом из основных узлов.
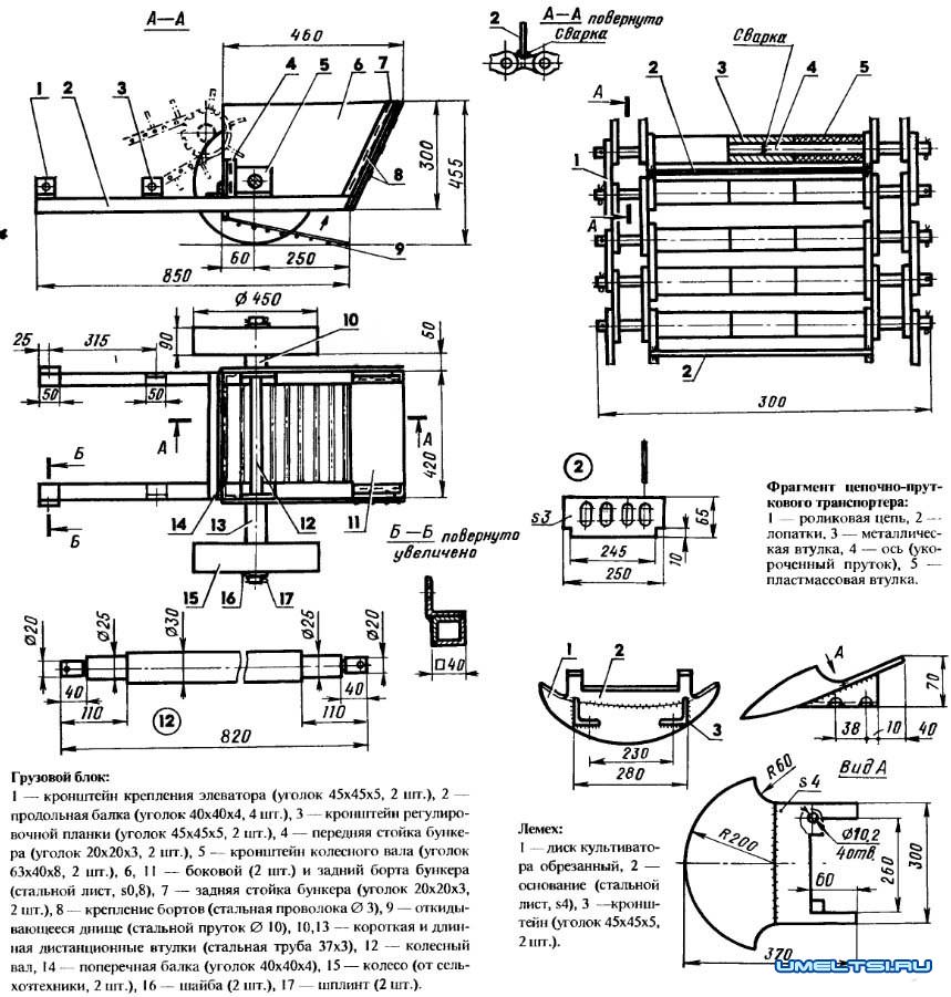
Главный из них — элеватор. Он выполняет две функции: транспортную — перемещает и очищает картофель — и несущую — к его раме крепится весь моторно-ре-дукторный блок. Элеватор установлен асимметрично относительно колесного лафета. Это связано с особенностью работы тягача — ширина его колеи обычно больше расстояния между боровками, поэтому одни колеса трактора и лафета всегда идут по междурядью, а другие — по убранному полю.
Рама элеватора сделана из уголков 45x45 мм. К ней привинчены лемех и корпуса опорных и тяговых звездочек на ведущем валу транспортера.
Цепочно-прутковый транспортер или гусеница — от списанного картофелеуборочного комбайна. Цепи ее укорочены примерно до 1670 мм (оставлено 44 прутка), а прутки — до 300 мм. Гусеница снабжена лопатками захвата клубней (без них крупные картофелины будут скатываться вниз) и установлена на опорные звездочки, передние из которых — регулируемые (ими определяется степень натяжения цепей). Перемещается транспортер тяговыми звездочками на ведущем валу. Причем со скоростью большей, чем скорость движения трактора по междурядью, иначе комбайн не справится с потоком поступающих клубней.
К уголкам рамы приварены борта из листовой стали толщиной 1 мм, к бортам — скаты, прикрывающие цепи, чтобы туда не попадали картофелины, а кроме того — четыре кронштейна: два для планок, которыми регулируется угол наклона относительно колесного лафета, и два — для крепления элеватора к лафету.
Как уже сказано выше, к элеватору крепится моторно-редукторный блок со своей рамой. Двигатель — мопедный, Д-6, без каких-либо доработок (хотя было бы полезно установить вентилятор принудительного охлаждения). Мощности его с лихвой хватает для привода транспортера. Заводится он самым простым способом — пусковым рычагом. Усилия руки для этого вполне достаточно.
Редуктор представляет собой комбинацию из трех цепных передач (все цепи мопедные, а звездочки — велосипедные, доработанные) и двух промежуточных валов — верхнего и нижнего. Назначение редуктора — передать крутящий момент от Д-6 к ведущему валу элеватора.
Топливо поступает самотеком из бензобака, установленного чуть выше двигателя.
Грузовой блок тоже конструктивно прост. Он состоит из колесного лафета и бункера-накопителя. Рама лафета сварена из уголков 40x40 мм, а стенки бункера вырезаны из кровельного железа и прикручены к передним и задним стойкам толстой проволокой через специальные отверстия (такого крепления вполне достаточно, использовать здесь болты или заклепки мне показалось нерациональным). Для разгрузки бункера решетчатое днище опускается, а клубни собираются в заранее приготовленные мешки.
Лемех изготовлен из четырех деталей: обрезанного диска культиватора, стальной пластины толщиной 4 мм, передняя кромка которой отбита молотком по форме диска, и двух кронштейнов из уголков 45x45 мм. Сталь диска — каленая, ей не страшны ни камни.ни ссохшиеся земляные комья. Полукруглая же форма режущей кромки при копке картофеля наиболее эффективна. К раме элеватора лемех крепится четырьмя болтами.
Сцепное устройство специально описывать не буду. У всех техника разная, и навесные орудия, как правило, крепятся по-разному. Скажу только, что ведущий элемент узла — это шарнир от рулевой тяги грузовика, удобная и надежная деталь.
Картофелеуборочный комбайн эксплуатируется уже два сезона и значительно снизил тяжесть сельского труда нашей семьи.
С.ГОРЯЧЕВ
Чертежи картофельного комбайна